
Crozilla.com
Panorama Homes
+38 ···
Nr. anzeigenPreise & Kosten
Provision für Käufer
Bitte beachte, das Angebot kann bei Vertragsabschluss die Zahlung einer Provision beinhalten. Weitere Informationen erhältst Du vom Anbieter.
Die Wohnung
Wohnungslage
1. Geschoss
Details
Objektbeschreibung
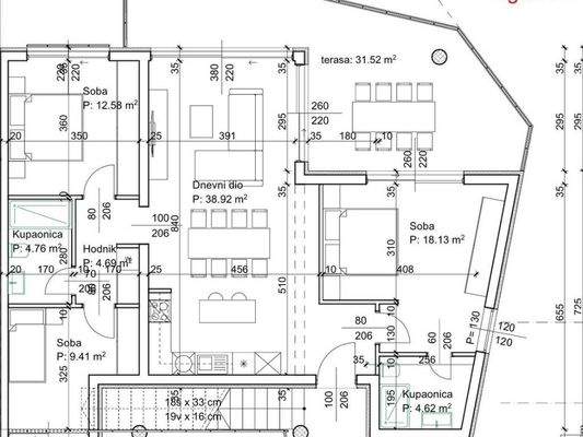
Ekskluzivno u nasoj ponudi - trosoban stan na prvome katu dvojne zgrade, novogradnje - prvi red do mora u Staroj Baski, predivnom primorskom mjestu na otoku Krku. Ovaj stan se sastoji od: master spavace sobe, ukupne kvadrature 18,13m2 (master soba ima i vlastitu kupaonicu), jos dvije spavace sobe, kvadratura 12,58m2 i 9,41m2...
Weitere Informationen
Stichworte
Anzahl der Schlafzimmer: 3, Anzahl der Badezimmer: 2, 1 Etagen
Anbieter der Immobilie
Crozilla.com
Nova cesta 60, 10000 ZAGREB
Online-ID: 2mph55s
Referenznummer: 18214587_1
Finde Angebote wie dieses
Hier geht es zu unserem Impressum, den Allgemeinen Geschäftsbedingungen, den Hinweisen zum Datenschutz und nutzungsbasierter Online-Werbung.