
Immobilienprofis.Bayern - Vertriebspartner von Wand-Massivhaus
Herr Elmar Treffler
+49 ···
Nr. anzeigenPreise & Kosten
Warum sehe ich diese Anzeige? – Du siehst diese Anzeige basierend auf Ihrer Navigation auf unserer Website und den Suchkriterien, die du verwendet hast.
Lage
Ihr neues Zuhause im Stadtzentrum von Gersthofen...
++ mit Garten ++ vor den Toren Augsburgs ++ schnelle Anbindung an B2 / A8 ++ perfekt für München-Pendler ++
Ruhige Lage mit ausgezeichneter Infrastruktur:
. City-Center Gersthofen mit allen Geschäften für den täglichen Bedarf befindet sich in unmittelbarer...
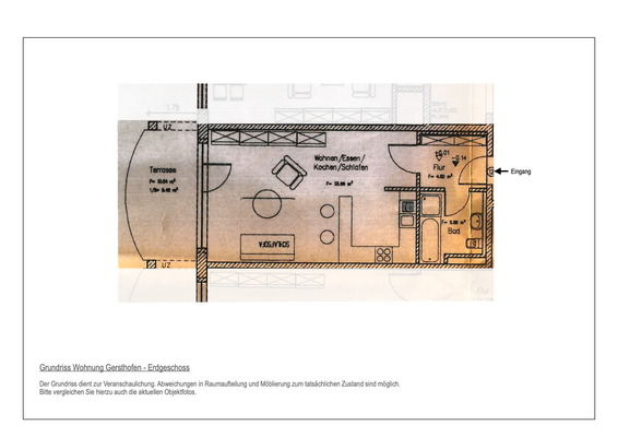
Die Wohnung
Kategorie
Apartment
Wohnungslage
Erdgeschoss
Bezug
nach Absprache/ab sofort
Wohnanlage
Energie & Heizung
Warum sehe ich diese Anzeige? – Du siehst diese Anzeige basierend auf Ihrer Navigation auf unserer Website und den Suchkriterien, die du verwendet hast.
Energieausweistyp
Verbrauchsausweis
Gebäudetyp
Wohngebäude
Baujahr laut Energieausweis
1994
Wesentliche Energieträger
Erdgas schwer
Gültigkeit
11.03.2019 bis 10.03.2029
Effizienzklasse
C
Endenergieverbrauch
89,00 kWh/(m²·a)
Weitere Energiedaten
Energieträger
Gas
Heizungsart
Zentralheizung
Details
Objektbeschreibung
++ Wohnung in Bestlage ++ Voll möbliert ++ Eigener Garten mit Terrasse ++
Die angebotene Erdgeschosswohnung befindet sich in einem sehr gepflegten Mehrparteienhaus innerhalb einer ruhigen und ansprechenden Wohnanlage. Mit ca. 52?m² Wohnfläche bietet sie ein ideales Zuhause für Singles, Paare oder Senioren, die Wert auf...
Ausstattung
Die Wohnung wird vollständig möbliert vermietet und ermöglicht einen sofortigen Einzug - ohne weiteren organisatorischen Aufwand. Zur Ausstattung gehören unter anderem:
- moderne Einbauküche mit hochwertigen Elektrogeräten von Zanussi (Herd, Backofen, Geschirrspüler)
- Esstisch mit Stühlen
- komfortable...
Preisinformation
1 Stellplatz
Weitere Informationen
Sonstiges
Bei Interesse an diesem Angebot kontaktieren Sie uns unter der Rufnummer 0151-29555070.
Gerne vereinbaren wir mit Ihnen einen persönlichen Besichtigungstermin für die Wohnung.
Alle genannten Angaben zum Haus/zur Wohnung beruhen auf Informationen durch den Eigentümer/die Eigentümer bzw...
Anbieter der Immobilie
Immobilienprofis.Bayern - Vertriebspartner von Wand-Massivhaus
Peter-Dörfler-Str. 30, 86199 Augsburg
Online-ID: 2mphp5r
Referenznummer: 124627914#4LZsy3
Finde Angebote wie dieses
Hier geht es zu unserem Impressum, den Allgemeinen Geschäftsbedingungen, den Hinweisen zum Datenschutz und nutzungsbasierter Online-Werbung.