




Studio zum Kauf269473.15 €4.190 €/m²2 Zimmer • 64,3 m² • frei ab sofort
269473.15 €
4.190 €/m²
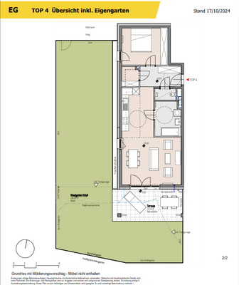
2 Zimmer • 64,3 m² • frei ab sofort
Ein viertel grün - gefördert , nachhaltig und schöner Wohnen
Merkmale
- frei ab sofort
- Kelleranteil
- Garage
- Gäste-WC
- Terrasse
Grundrisse
Grundrisse
1 / 2
Realisiere Dein Projekt
Bausubstanz und Energie
Heizwärmebedarf (HWB)
A
Gesamtenergieeffizienz (fGEE)
- Baujahr2026
- EnergieträgerFernwärme
Preisdetails
Kaufpreis
269473.15 €
4.189,57 €/m²
Provision für Käufer
Bitte beachte, das Angebot kann bei Vertragsabschluss die Zahlung einer Provision beinhalten. Weitere Informationen erhältst Du vom Anbieter.
Weitere Preisinformationen
die Sonstigen Kosten setzen sich aus dem Kaltwasserakonto zusammen
Die Gesamthöhe des Förderdarlehens (bereits vom Kaufpreis abgezogen), welches mit der Annuität getilgt wird, beläuft sich auf ca. 72 099,94EUR., 1 Garagenstellplatz
Lage

Wiener Neustadt (2700)
Der Anbieter hat die genaue Adresse nicht freigegeben
Weitere Informationen
Weitere Services
Lust auf eine Besichtigung?
Eine Frage zur Immobilie?
Über den Anbieter
Raiffeisen Immobilien Vermittlung GmbHMaklerbüro
F.-W.-Raiffeisen-Platz 1/ 4.OG, 1020 WIEN, STADT
10 Jahre Partnerschaft
Frau Sophie KühnelDein Kontakt
Weitere Unterlagen
Online-ID: 2mphv5j
Referenznummer: 00010107170019
Wie zufrieden bist du mit dieser Seite (nicht mit der Immobilie selbst)?




