
Crozilla.com
Mirjana Mikulec Real Estate
+38 ···
Nr. anzeigenPreise & Kosten
Provision für Käufer
Bitte beachte, das Angebot kann bei Vertragsabschluss die Zahlung einer Provision beinhalten. Weitere Informationen erhältst Du vom Anbieter.
Die Immobilie
Zu diesem Angebot wurden vom Anbieter keine weiteren Daten hinterlegt. Für weitere Informationen bitte den Anbieter kontaktieren.
Nach Informationen fragenDetails
Objektbeschreibung
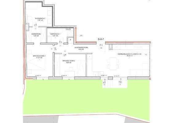
Prodaja, 3sobni stan u novogradnji u centru Samobora
Predstavljamo jedinstveni projekt moderne stambene zgrade sa 18 stanova u samom centru Samobora koja nudi jedinstveno iskustvo zivota u urbanoj oazi, kombinirajuci suvremene tehnologije, visoku kvalitetu gradnje te prilagodene opcije za stanare.
Smjestena u mirnom i...
Weitere Informationen
Stichworte
Anzahl der Schlafzimmer: 2, Anzahl der Badezimmer: 2, 1 Etagen
Anbieter der Immobilie
Crozilla.com
Nova cesta 60, 10000 ZAGREB
Online-ID: 2mpkh5u
Referenznummer: 18589640_2
Finde Angebote wie dieses
Hier geht es zu unserem Impressum, den Allgemeinen Geschäftsbedingungen, den Hinweisen zum Datenschutz und nutzungsbasierter Online-Werbung.