

Uwe Tesch - Handelsvertretung der Bien - Zenker GmbH
Herr Uwe Tesch
+49 ···
Nr. anzeigenPreise & Kosten
Provision für Käufer
Bitte beachte, das Angebot kann bei Vertragsabschluss die Zahlung einer Provision beinhalten. Weitere Informationen erhältst Du vom Anbieter.
Lage
Hamburg ist nicht nur ein pulsierendes Zentrum für Kultur und Wirtschaft, sondern auch ein Lebensraum, der zahlreiche Möglichkeiten für Bildung, Gesundheit, Einkauf und Freizeit bietet. Besonders im Stadtteil Volksdorf finden Sie eine Vielzahl von Schulen, Kindergärten und Bildungseinrichtungen, die eine hervorragende...
Das Haus
Kategorie
Einfamilienhaus
Energie & Heizung
Warum sehe ich diese Anzeige? – Du siehst diese Anzeige basierend auf Ihrer Navigation auf unserer Website und den Suchkriterien, die du verwendet hast.
Weitere Energiedaten
Haustyp
KfW 40
Details
Objektbeschreibung
Das BALANCE 175 überzeugt durch seine kluge Architektur und flexible Raumgestaltung, die sich den individuellen Bedürfnissen seiner Bewohner anpasst. Auf drei Etagen erstreckt sich das Haus über eine großzügige Wohnfläche von 180 m² und bietet ausreichend Raum für die ganze Familie. Das Erdgeschoss besticht durch den...
Ausstattung
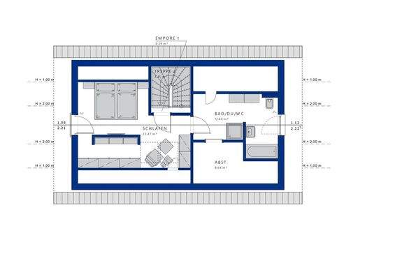
Der Grundriss des BALANCE 175 ist optimal auf Ihre Bedürfnisse abgestimmt und bietet mit sechs Zimmern, darunter fünf Schlafzimmer und drei Badezimmer, den Raum für ein harmonisches Familienleben. Die durchdachte Aufteilung sorgt dafür, dass sowohl Rückzugsmöglichkeiten als auch Gemeinschaftsflächen perfekt aufeinander...
Weitere Informationen
Sonstiges
Der hier angegebene Wert zur zu zahlenden Grunderwerbsteuer ist ein vom Portalbetreiber automatisierter Wert, der nicht der Realität entspricht, da die Grunderwerbsteuer nur auf den im Gesamtangebot einberechneten Grundstückswert berechnet wird.
Inkl. PV - Anlage und Speicher für die eigene...
Dokumente
Anbieter der Immobilie
Uwe Tesch - Handelsvertretung der Bien - Zenker GmbH
Versmannstraße 22 (Hafen City), 20547 Hamburg

Online-ID: 2mplh5t
Referenznummer: 12258-LANDFAR052
Finde Angebote wie dieses
Hier geht es zu unserem Impressum, den Allgemeinen Geschäftsbedingungen, den Hinweisen zum Datenschutz und nutzungsbasierter Online-Werbung.