
Müller Merkle Immobilien GmbH
Frau Jessica Albrecht
Kontaktiere den Anbieter schriftlich, es ist keine Telefonnummer hinterlegt.
Preise & Kosten
Kaution
4980
Warum sehe ich diese Anzeige? – Du siehst diese Anzeige basierend auf Ihrer Navigation auf unserer Website und den Suchkriterien, die du verwendet hast.
Lage
Willkommen im Überseequartier der HafenCity!
Die HafenCity avanciert zu Hamburgs neuem Lebensmittelpunkt. Entsprechend gut ist das KPTN im Zentrum dieses Stadtteils an die Hotspots Hamburgs angebunden: Rathaus, Kiez, Neuer Wall, Alster und Elbe sind nicht weit entfernt, ebenso wie Einkaufsmöglichkeiten und Gastronomien...
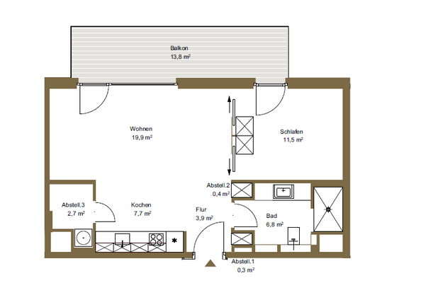
Die Wohnung
Wohnungslage
2. Geschoss
Bezug
01.02.2026
Wohnanlage
Energie & Heizung
Warum sehe ich diese Anzeige? – Du siehst diese Anzeige basierend auf Ihrer Navigation auf unserer Website und den Suchkriterien, die du verwendet hast.
Energieausweistyp
Bedarfsausweis
Gebäudetyp
Wohngebäude
Baujahr laut Energieausweis
2019
Wesentliche Energieträger
Fernwärme
Gültigkeit
11.02.2021 bis 10.02.2031
Effizienzklasse
B
Endenergiebedarf
67,00 kWh/(m²·a)
Weitere Energiedaten
Energieträger
Fernwärme
Heizungsart
Fußbodenheizung
Details
Objektbeschreibung
Das Neubauensemble KPTN bietet anspruchsvollen Wohnraum im zukünftigen Lebensmittelpunkt der Metropole Hamburg. Das Quartier besteht aus insgesamt fünf Gebäuden, die eine Gesamtfläche von rund 33.000 Quadratmetern bieten. Zwischen den Gebäudekomplexen liegt eine öffentliche Piazza als Passage zwischen der Straße "Am...
Ausstattung
Stilsicher und mit viel Liebe fürs Detail:
- Bodentiefe Panoramafenster
- Edle Holzdielen
- Exklusive Einbauküche von Hummel mit marmorierter Arbeitsplatte, Markengeräten und Bronze-Armaturen
- Hochwertige, maßangefertigte Tischlereinbauten
- Bronzefarbene Designer-Bad- und Küchenarmaturen von Hans Grohe...
Weitere Informationen
Sonstiges
ANFRAGEN BITTE ÜBER DAS KONTAKTFORMULAR!
Wir respektieren die Privatsphäre der derzeitigen Mieter, daher handelt es sich bei den Bildern um Bilder einer vergleichsweisen Wohnung im Objekt.
HAFTUNGSAUSSCHLUSS:
Diese Anzeige dient nur der ersten Information und stellt kein Vertragsangebot dar. Die...
Anbieter der Immobilie
Müller Merkle Immobilien GmbH
Galileistraße 1, 69115 Heidelberg
Frau Jessica Albrecht
Dein Ansprechpartner
Kontaktiere den Anbieter schriftlich, es ist keine Telefonnummer hinterlegt.
Online-ID: 2mplp5h
Referenznummer: KPTN-H4.02.02#EpnLD
Finde Angebote wie dieses
Hier geht es zu unserem Impressum, den Allgemeinen Geschäftsbedingungen, den Hinweisen zum Datenschutz und nutzungsbasierter Online-Werbung.