
Properstar SA
Firma Porta Da Frente - Christie`s International Real Estate
(+3 ···
Nr. anzeigenPreise & Kosten
Provision für Käufer
Bitte beachte, das Angebot kann bei Vertragsabschluss die Zahlung einer Provision beinhalten. Weitere Informationen erhältst Du vom Anbieter.
Die Wohnung
Kategorie
Apartment
Wohnanlage
Details
Objektbeschreibung
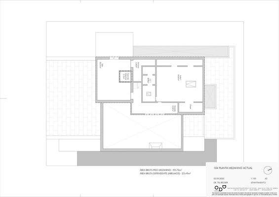
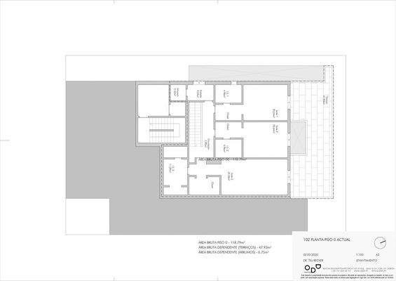
Located in the heart of Estoril, within a gated community with security, this charming 4-story apartment seamlessly blends charm, functionality, and comfort. With a construction area of 692 m2, it stands out for its efficient layout and excellent condition. ~Key Features:~Entrance Floor: A spacious living room with...
Weitere Informationen
Stichworte
Anzahl der Schlafzimmer: 7, Anzahl der Badezimmer: 6
Anbieter der Immobilie
Online-ID: 2mplq5y
Referenznummer: 111980554
Finde Angebote wie dieses
Hier geht es zu unserem Impressum, den Allgemeinen Geschäftsbedingungen, den Hinweisen zum Datenschutz und nutzungsbasierter Online-Werbung.