
Evernest GmbH
Lukas Sönnichsen
+49 ···
Nr. anzeigenPreise & Kosten
Provision für Käufer
3.57 inkl. MwSt.
Bei Abschluss eines notariellen Kaufvertrages ist eine Käuferprovision vom Käufer in Höhe von 3.57 % inkl. MwSt. aus dem Kaufpreis fällig.
Lage
Der Hafenort Büsum ist seit dem 19. Jahrhundert ein Seebad und bietet zahlreiche Aktivitäten für Ihren Urlaub.
In Büsum wird über eine Gästekarte eine Kurtaxe erhoben. Das Bade- und Freizeitareal Familienlagune Perlebucht bietet Gezeiten unabhängige, durch die DLRG bewachte, Bade- und Wassersportbecken mit Seebrücke...
Das Haus
Kategorie
Einfamilienhaus
Baujahr
1900
Energie & Heizung
Warum sehe ich diese Anzeige? – Du siehst diese Anzeige basierend auf Ihrer Navigation auf unserer Website und den Suchkriterien, die du verwendet hast.
Energieausweistyp
Bedarfsausweis
Gebäudetyp
Wohngebäude
Effizienzklasse
F
Endenergiebedarf
165,80 kWh/(m²·a)
Weitere Energiedaten
Energieträger
Öl
Details
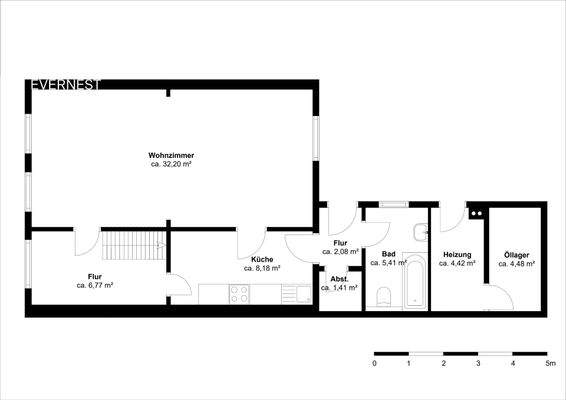
Objektbeschreibung
Willkommen in Ihrem neuen Zuhause im malerischen Büsum! Hier präsentieren wir Ihnen zwei entzückende Häuser, die im Herzen von Büsum liegen und sich perfekt für Familien oder Paare eignen.
Es handelt sich um ein massiv errichtetes Einfamilienhaus, dass im Jahre 2000 kernsaniert wurde.
Das Gebäude erhielt im Zuge...
Ausstattung
Haupthaus:
- Massivbau
- Kernsaniert in 2000
- 2 Schlafzimmer
- Hauswirtschaftsraum
- Duschbad
- Separates WC im Dachgeschoss
Nebengebäude:
- Neubau in 2000
- 1 Schlafzimmer
- Duschbad
Außenbereich:
- Terrasse
- 2 PKW Außenstellplätze
Weitere Informationen
Stichworte
Stellplatz vorhanden, Anzahl der Schlafzimmer: 3, Anzahl der Badezimmer: 2, Anzahl der separaten WCs: 2, Anzahl Terrassen: 1, 2 Etagen
Anbieter der Immobilie
Online-ID: 2mpm55n
Referenznummer: L-9C4FZQ8
Finde Angebote wie dieses
Hier geht es zu unserem Impressum, den Allgemeinen Geschäftsbedingungen, den Hinweisen zum Datenschutz und nutzungsbasierter Online-Werbung.