
Riverside Real Estate GmbH
Frau Lynn Ülzmann
004 ···
Nr. anzeigenPreise & Kosten
Provision für Käufer
2,975% inkl. MwSt.
Lage
Die Immobilie liegt in einer familienfreundlichen Wohngegend im beliebten Lilienthaler Ortsteil Moorhausen.
Die Umgebung ist ruhig und grün, gleichzeitig aber hervorragend an die Stadt Bremen angebunden.
Direkt vor der Haustür befindet sich eine Bushaltestelle, und auch die Straßenbahnlinie 4 ist in wenigen Minuten...
Das Haus
Kategorie
Einfamilienhaus
Baujahr
2021
Energie & Heizung
Warum sehe ich diese Anzeige? – Du siehst diese Anzeige basierend auf Ihrer Navigation auf unserer Website und den Suchkriterien, die du verwendet hast.
Energieausweistyp
Bedarfsausweis
Gebäudetyp
Wohngebäude
Baujahr laut Energieausweis
2022
Wesentliche Energieträger
LUFTWP
Gültigkeit
bis 04.11.2035
Effizienzklasse
A+
Endenergiebedarf
10,70 kWh/(m²·a)
Weitere Energiedaten
Haustyp
Massivhaus
Heizungsart
Luft-/Wasser-Wärmepumpe
Details
Objektbeschreibung
Willkommen in diesem schönen Einfamilienhaus, das modernes Wohnen, energieeffiziente Technik und ein zeitloses Design miteinander vereint.
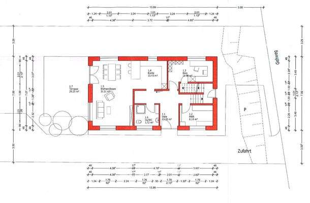
Das im Jahr 2021 erbaute Haus bietet rund 170 m² Wohnfläche mit einer durchdacht geplanten Raumaufteilung und hochwertigen Materialien. Auf dem ca. 643 m² großen Grundstück finden...
Ausstattung
.? ?Wohnfläche: ca. 170 m²
.? ?Grundstücksgröße: ca. 643 m²
.? ?Baujahr 2021
.? ?Fußbodenheizung
.? ?Energiestandard KfW 40 Plus
.? Smart Home
.? ?Garage mit ca. 44 m²
.? ?Luftwärmepumpe
.? ?PV-Anlage mit Speicher
. Sonnen Charger Wallbox
. ?Lüftungsanlage mit Wärmerückgewinnung
....
Preisinformation
3 Stellplätze
2 Garagenstellplätze
Weitere Informationen
Sonstiges
Die Riverside Real Estate GmbH bietet Immobilien aller Assetklassen zum Verkauf an, mit Standorten in Hameln-Pyrmont, Hannover, Bremen und Umgebung.
Wenn Sie mehr über uns erfahren möchten, besuchen Sie gerne unsere Homepage unter WWW.RIVERSIDE-ESTATE.DE. Dort finden Sie ausführliche Informationen über...
Anbieter der Immobilie
Riverside Real Estate GmbH
Erichstr. 16, 31785 Hameln
Online-ID: 2mpmy5f
Referenznummer: 2025-501
Finde Angebote wie dieses
Hier geht es zu unserem Impressum, den Allgemeinen Geschäftsbedingungen, den Hinweisen zum Datenschutz und nutzungsbasierter Online-Werbung.