
Volksbank Kassel Göttingen eG
Herr Ulrich Bruns
055 ···
Nr. anzeigenPreise & Kosten
Provision für Käufer
5,950 % inkl. MwSt.
Lage
Die Immobilie liegt in einer ruhigen, grünen Wohnlage im Ortsteil Reyershausen der Gemeinde Bovenden. Die ländliche Umgebung schafft ein angenehmes Wohnumfeld, während alle wichtigen infrastrukturellen Einrichtungen schnell erreichbar sind. Über die Kreisstraße K1 besteht eine direkte Anbindung an den Flecken Bovenden, und...
Das Renditeobjekt
Kategorie
Mehrfamilienhaus
Baujahr
1890
Energie & Heizung
Warum sehe ich diese Anzeige? – Du siehst diese Anzeige basierend auf Ihrer Navigation auf unserer Website und den Suchkriterien, die du verwendet hast.
Energieausweistyp
Verbrauchsausweis
Gebäudetyp
Wohngebäude
Wesentliche Energieträger
Erdgas
Gültigkeit
11.04.2022 bis 10.04.2032
Effizienzklasse
E
Endenergieverbrauch
130,00 kWh/(m²·a) - Warmwasser enthalten
Weitere Energiedaten
Energieträger
Gas
Details
Objektbeschreibung
Dieses besondere Mehrfamilienhaus verbindet historischen Charme mit umfangreichen Modernisierungen und attraktiven Entwicklungsmöglichkeiten.
Das Haupthaus wurde im Jahr 1890 als Fachwerkhaus errichtet und 1978 durch einen massiven Wohnanbau erweitert. Ursprünglich als Gaststätte genutzt, erfolgte 1991 die offizielle...
Preisinformation
6 Stellplätze
2 Garagenstellplätze
Weitere Informationen
Stichworte
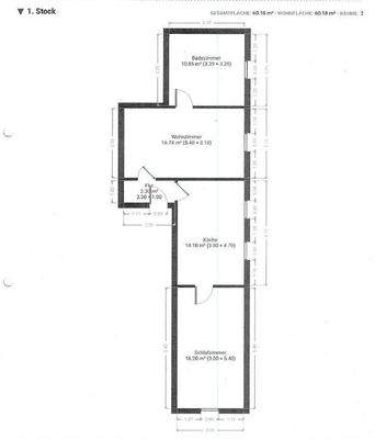
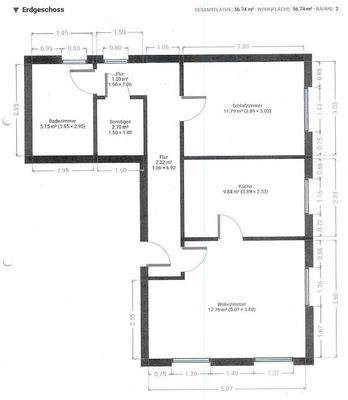
Wohnfläche: 419,00 m², Nutzfläche: 161,64 m², Bundesland: Niedersachsen
Anbieter der Immobilie
Volksbank Kassel Göttingen eG
Rudolf-Schwander-Str. 1, 34117 Kassel
Online-ID: 2mpn55z
Referenznummer: 2-2091
Finde Angebote wie dieses
Hier geht es zu unserem Impressum, den Allgemeinen Geschäftsbedingungen, den Hinweisen zum Datenschutz und nutzungsbasierter Online-Werbung.