
GLC Glücksburg Consulting AG
Herr Claus-Dieter Stoldt
004 ···
Nr. anzeigenPreise & Kosten
Provision für Käufer
provisionsfrei
Lage
Die florierende Gemeinde Rellingen grenzt direkt an den westlichen Teil Hamburgs. Der Ort mit seiner schönen Barockkirche bietet außer einem vielfältigen Freizeitangebot diverse Einkaufsmöglichkeiten, Ärzte, mehrere Kindergärten und Grundschulen. Auch weiterführende Schulen sind mit öffentlichen Verkehrsmitteln gut zu...
Das Haus
Kategorie
Villa
Baujahr
1905
Energie & Heizung
Warum sehe ich diese Anzeige? – Du siehst diese Anzeige basierend auf Ihrer Navigation auf unserer Website und den Suchkriterien, die du verwendet hast.
Energieausweistyp
Bedarfsausweis
Gebäudetyp
Wohngebäude
Baujahr laut Energieausweis
1905
Wesentliche Energieträger
GAS
Gültigkeit
bis 07.11.2028
Endenergiebedarf
179,60 kWh/(m²·a)
Weitere Energiedaten
Energieträger
Gas
Heizungsart
Zentralheizung
Details
Objektbeschreibung
Die majestätische Jugendstilvilla, die im Jahr 1904 erbaut wurde, besticht durch ihre einzigartige und charakteristische Architektur aus der Epoche des Jugendstils. Diese Kunstbewegung zeichnet sich durch eine außergewöhnliche Verbindung von Kunst und Natur aus. Organische Formen, florale Motive und harmonisch geschwungene...
Ausstattung
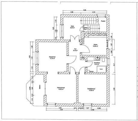
EG mit ca. 94,3 m²:
? Diele
? Abstellraum
? Küche
? Duschbad
? Schlafzimmer
? Wohnzimmer
? Esszimmer
? Flur
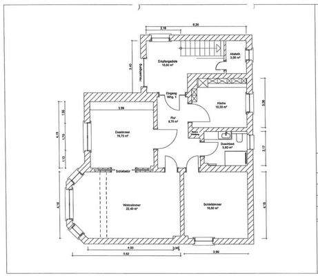
OG mit ca. 95,7 m²:
? Diele
? Küche
? Duschbad
? Schlafzimmer
? Wohnzimmer
? Esszimmer
? Flur
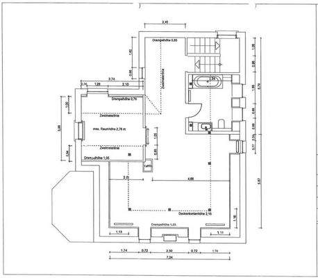
DG mit ca. 88,0 m²:
? Diele
? Wannenbad
...
Preisinformation
2 Stellplätze
Weitere Informationen
Sonstiges
***Die Villa wird von der GLC AG im exklusiven Allein-Auftrag des Eigentümers angeboten.
Nach Unterschrift NDA erhält der Interessent den Zugang zum Datenraum der GLC AG für das Objekt***
Stichworte
Nutzfläche: 98,00 m², Gesamtfläche: 376,00 m², Anzahl Terrassen: 1, Flurstück: 1022, Gemarkung...
Anbieter der Immobilie
GLC Glücksburg Consulting AG
Albert-Einstein-Ring 5, 22761 Hamburg
Online-ID: 2mpnf53
Referenznummer: 492
Finde Angebote wie dieses
Hier geht es zu unserem Impressum, den Allgemeinen Geschäftsbedingungen, den Hinweisen zum Datenschutz und nutzungsbasierter Online-Werbung.