

HS - Immobilien, Inh. Henning-F. Sander
Herr Henning-F. Sander
051 ···
Nr. anzeigenPreise & Kosten
Provision für Käufer
3,57 % inkl. MwSt. Zahlbar von Verkäufer und Käufer nach § 656c BGB
Lage
Die Ortschaft Osterwald ist in Unterende und Oberende eingeteilt. Im Zentrum von Osterwald finden Sie
Einkaufsmöglichkeiten für den täglichen Bedarf, Ärzte und eine Apotheke und ein Restaurant. Desweiteren
sind Supermärkte, Bäckereien und Fleischereien, Banken, Kindergärten und eine Grundschule vor Ort bzw.
in den...
Das Haus
Kategorie
Doppelhaushälfte
Baujahr
1974
Bezug
nach Vereinbarung
Energie & Heizung
Warum sehe ich diese Anzeige? – Du siehst diese Anzeige basierend auf Ihrer Navigation auf unserer Website und den Suchkriterien, die du verwendet hast.
Energieausweistyp
Bedarfsausweis
Gebäudetyp
Wohngebäude
Baujahr laut Energieausweis
1974
Wesentliche Energieträger
OEL
Gültigkeit
bis 16.12.2035
Effizienzklasse
G
Endenergiebedarf
224,10 kWh/(m²·a)
Weitere Energiedaten
Energieträger
Öl
Heizungsart
Zentralheizung
Details
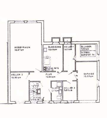
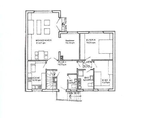
Objektbeschreibung
Diese äußerst gepflegte Doppelhaushälfte präsentiert sich auf einem weitläufigen Grundstück von ca. 579 m² und bietet eine großzügige Wohnfläche von ca. 115 m². Mit insgesamt vier Zimmern, darunter zwei gemütliche Schlafzimmer, eignet sich dieses Haus perfekt für Familien oder Paare, die neben ausreichend Raum auch Wert auf...
Ausstattung
Doppelhaushälfte im Bungalowstil
moderne Ausstattung in Küche und Bäder
im Wohnbereich Stäbchenparkett
ebenerdige Dusche im Erdgeschoss
voll unterkellert und mit Tageslicht-Duschbad
gepflegter Gartenbereich
2 Garagen
ruhige Wohnlage in einer Sackgasse
Preisinformation
2 Garagenstellplätze
Weitere Informationen
Sonstiges
Durch schriftliche Vereinbarung oder Inanspruchnahme unserer Maklertätigkeit kommt der Makler-Vertrag zustande. 3,57 % Käufer-Provision inkl. MwSt. vom beurkundeten Kaufpreis, verdient und fällig mit notarieller Beurkundung des Kaufvertrages. Wir haben einen provisionspflichtigen Maklervertrag in gleicher Höhe...
Anbieter der Immobilie
HS - Immobilien, Inh. Henning-F. Sander
Rote Reihe 18, 30827 Garbsen

Online-ID: 2mppk5t
Referenznummer: 525
Finde Angebote wie dieses
Hier geht es zu unserem Impressum, den Allgemeinen Geschäftsbedingungen, den Hinweisen zum Datenschutz und nutzungsbasierter Online-Werbung.