

Volksbank Immobilien Münsterland GmbH
Herr Raphael Brinkmann
025 ···
Nr. anzeigenDieses Angebot ist Teil des Neubauprojekts
Wohnen im Herzen von Emsdetten
Preise & Kosten
Provision für Käufer
3,00 % inkl. gesetzl. MwSt. vom Käufer inkl. MwSt.
Lage
Emsdetten, eine junge aufstrebende Stadt mit hervorragender Infrastruktur, wirtschaftsfreundlichem Klima und höchster Lebensqualität. Die Stadt bietet mit ca. 36.700 Einwohnern einen idealen Ort zum Wohnen, Leben und Arbeiten, zentrumsnah und doch im Grünen. Die Vielzahl an Kindergärten und Kindertagesstätten sowie alle...
Die Wohnung
Wohnungslage
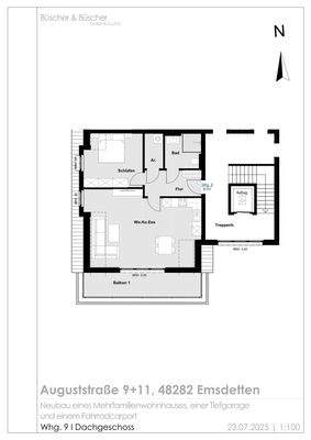
2. Geschoss (Dachgeschoss)
Wohnanlage
Das Neubauprojekt
Energie & Heizung
Warum sehe ich diese Anzeige? – Du siehst diese Anzeige basierend auf Ihrer Navigation auf unserer Website und den Suchkriterien, die du verwendet hast.
Weitere Energiedaten
Heizungsart
Fußbodenheizung
Details
Objektbeschreibung
Entdecken Sie das exklusive Neubauvorhaben im Herzen von Emsdetten - ein durchdachtes und nachhaltiges Konzept, das modernen Wohnkomfort in zentraler Lage bietet. Nur wenige Minuten vom Stadtzentrum entfernt, finden Sie hier 12 energieeffiziente Eigentumswohnungen im fortschrittlichen KfW EH 40 NH-Standard mit QNG Zertifikat...
Ausstattung
- genießen Sie die Vorteile einer optimalen Infrastruktur und Nahversorgung
- Dank der hervorragenden Anbindung erreichen Sie die Innenstadt in kürzester Zeit
- unser Wohnprojekt zeichnet sich durch einen hochwertigen Baustil aus, der sowohl ästhetische Ansprüche als auch Langlebigkeit erfüllt
- ein moderner...
Preisinformation
1 Tiefgaragenstellplatz
Weitere Informationen
Sonstiges
Die Immobilienangebote verstehen sich freibleibend und unverbindlich. Zwischenverkauf /Zwischenvermietung ausdrücklich vorbehalten. Die Objektbeschreibungen wurde aufgrund der Angaben der Verkäufer/Vermieter erstellt. Für die Richtigkeit wird keine Haftung übernommen. Mit dem Eigentümer wurde vereinbart, dass...
Anbieter der Immobilie
Volksbank Immobilien Münsterland GmbH
Neubrückenstr. 66, 48143 Münster

Online-ID: 2mpqb5b
Referenznummer: 20723_9
Finde Angebote wie dieses
Hier geht es zu unserem Impressum, den Allgemeinen Geschäftsbedingungen, den Hinweisen zum Datenschutz und nutzungsbasierter Online-Werbung.