
Evangelisches Siedlungswerk in Bayern
Michael Stary
Kontaktiere den Anbieter schriftlich, es ist keine Telefonnummer hinterlegt.
Preise & Kosten
Kaution
2.190,00
Warum sehe ich diese Anzeige? – Du siehst diese Anzeige basierend auf Ihrer Navigation auf unserer Website und den Suchkriterien, die du verwendet hast.
Lage
Fürth Eigenes Heim liegt nördlich der Altstadt und des Klinikums und ist eine ruhige Wohngegend. Hier finden Sie alles, was Sie für das tägliche Leben benötigen. Der Stadtteil hat eine gute Anbindung an den öffentlichen Nahverkehr. Zudem bietet das nahe gelegene Regnitztal einen guten Ausgleich zum Alltag.
Die Wohnung
Wohnungslage
13. Geschoss
Bezug
16.02.2026
Wohnanlage
Energie & Heizung
Warum sehe ich diese Anzeige? – Du siehst diese Anzeige basierend auf Ihrer Navigation auf unserer Website und den Suchkriterien, die du verwendet hast.
Energieausweistyp
Verbrauchsausweis
Gebäudetyp
Wohngebäude
Baujahr laut Energieausweis
2017
Wesentliche Energieträger
Fernwärme
Effizienzklasse
B
Endenergieverbrauch
61,30 kWh/(m²·a)
Weitere Energiedaten
Energieträger
Fernwärme
Details
Objektbeschreibung
Objektreferenz: 1.1707.1.90
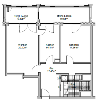
Die 2-Zimmer Wohnung verfügt über folgende Aufteilung:
- Wohnzimmer
- Schlafzimmer
- Küche (kann vom Vormieter abgelöst werden)
- Badezimmer mit Dusche
- Loggia
- Kellerabteil
Bitte beachten Sie, dass die Heizkosten separat über die INFRA abgerechnet werden.
Preisinformation
1 Stellplatz, Miete: 30,00 EUR
Weitere Informationen
Sonstiges
HINWEIS ZUR BEWERBUNG:
Um Ihnen den bestmöglichen Service zu bieten, können Sie sich bei uns digital bewerben. Kopieren Sie den untenstehenden Link in die Adresszeile Ihres Browsers und folgen Sie der Anleitung.
https://rdr.immomio.com/zFgbInj0
Interessentenlink -...
Anbieter der Immobilie
Evangelisches Siedlungswerk in Bayern
Hans-Sachs-Platz 10, 90403 Nürnberg
Michael Stary
Dein Ansprechpartner
Kontaktiere den Anbieter schriftlich, es ist keine Telefonnummer hinterlegt.
Online-ID: 2mpsx5y
Referenznummer: 1.1707.1.90-nijmi
Finde Angebote wie dieses
Hier geht es zu unserem Impressum, den Allgemeinen Geschäftsbedingungen, den Hinweisen zum Datenschutz und nutzungsbasierter Online-Werbung.