KAMA Wohnwirtschaftliche Betreuung GmbH

Frau Julia Kruschke

Kontaktiere den Anbieter schriftlich, es ist keine Telefonnummer hinterlegt.

Reihenmittelhaus zu vermieten

€ 1.272
Kaltmiete zzgl. NK
106 m²
Wohnfläche ca.
4
Zimmer
290 m²
Grundstücksfl. ca.

Der Anbieter dieses Objekts hat gegenüber der AVIV Germany GmbH als Betreiber dieses Online-Marktplatzes erklärt, nicht als Unternehmer im Sinne des § 1 KSchG zu handeln. Die im Verbraucherschutzrecht der Union verankerten Verbraucherrechte (insbesondere Informationspflichten und Rücktritts- bzw. Widerrufsrechte) finden auf den Vertrag zwischen dem Anbieter des Objekts und Ihnen (dem Interessenten) keine Anwendung.

Gewerblicher Anbieter

Der Anbieter dieses Objekts hat gegenüber der AVIV Germany GmbH als Betreiber dieses Online-Marktplatzes erklärt, als Unternehmer im Sinne des § 1 KSchG zu handeln.

AdresseSchillerstr. 27a
14656 Brieselang 
Auf Karte ansehen

Preise & Kosten

Kaltmiete € 1.272 Nebenkosten € 120

Kaution

3816,00

Lage

Die Gemeinde liegt 17 Kilometer westlich von Berlin-Spandau am Schnittpunkt von Berliner Autobahnring, Havelkanal und Bahnlinie Berlin-Hamburg innerhalb des Berliner Urstromtals. Bis zum Zentrum Berlins sind es etwa 30 Kilometer. Die Ortsteile Bredow und Zeestow befinden sich bereits an den Hängen der Nauener Platte, die das...

Mehr anzeigen

Das Haus

Baujahr

2000

Derzeitige Nutzung

vermietet

  • nicht unterkellert, Dach ausgebaut
  • Terrasse, Garten
  • 1 Stellplatz: Carport
  • Bad mit Fenster, Wanne und Dusche, Gäste-WC
  • Einbauküche
  • Böden: Fliesenboden, Teppichboden

Energie & Heizung

Weitere Energiedaten

Energieträger

Gas

Heizungsart

Etagenheizung

Details

Objektbeschreibung

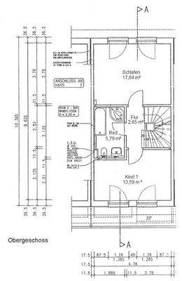
siehe Grundrisse

Weitere Informationen

helles Reihenmittelhaus
Unser Objekt hat vier Zimmer auf drei Etagen und wird über eine Gasheizung versorgt.
Im Erdgeschoß gelangt man vom Flur in das Gäste-WC, in den Hauswirtschaftsraum sowie in die Küche und den großzügigen Wohnbereich. Von dort aus gelangt man in die oberen beiden Etagen mit weiteren drei Zimmern...

Mehr anzeigen

Anbieter der Immobilie

Partner

KAMA Wohnwirtschaftliche Betreuung GmbH

im Durchschnitt  3,90  Sterne
(bei 29 Bewertungen)

Nennhauser Damm 150, 13591 Berlin

user

Frau Julia Kruschke

Dein Ansprechpartner

Kontaktiere den Anbieter schriftlich, es ist keine Telefonnummer hinterlegt.

Anbieter-Impressum

Online-ID: 2mpug5n

Finde Angebote wie dieses

imageimageimage

Hier geht es zu unserem Impressum, den Allgemeinen Geschäftsbedingungen, den Hinweisen zum Datenschutz und nutzungsbasierter Online-Werbung.