

DAHLER Potsdam | Berlin-Wannsee | Kleinmachnow
Herr Thorsten Dembowski
033 ···
Nr. anzeigenPreise & Kosten
Provision für Käufer
3,57% inkl. 19 % MwSt. bezogen auf den beurkundeten Kaufpreis
Lage
Werder - abgeleitet vom Begriff "vom Wasser umflossenes Land" - ist eine charmante Stadtinsel inmitten der Havel. Mit rund 26.000 Einwohnern zählt Werder heute zu den beliebtesten Wohn- und Ausflugszielen im Berliner Umland. Nur ca. 10 Kilometer von Potsdam und ca. 40 Kilometer vom Berliner Stadtzentrum entfernt, vereint die...
Das Haus
Kategorie
Bungalow
Baujahr
2010
Bezug
nach Absprache
Derzeitige Nutzung
vermietet
Energie & Heizung
Warum sehe ich diese Anzeige? – Du siehst diese Anzeige basierend auf Ihrer Navigation auf unserer Website und den Suchkriterien, die du verwendet hast.
Energieausweistyp
Bedarfsausweis
Gebäudetyp
Wohngebäude
Baujahr laut Energieausweis
2010
Wesentliche Energieträger
KWK_FOSSIL
Gültigkeit
bis 15.09.2035
Effizienzklasse
C
Endenergiebedarf
91,90 kWh/(m²·a)
Weitere Energiedaten
Energieträger
Fernwärme
Heizungsart
Fußbodenheizung
Details
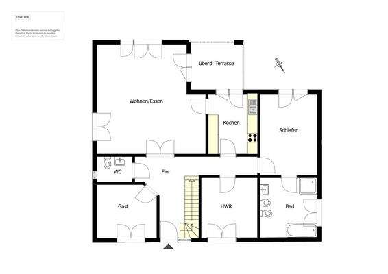
Objektbeschreibung
In einer ruhigen und zugleich begehrten Lage von Werder befindet sich dieser moderne Bungalow, der im Jahr 2010 errichtet wurde. Mit seiner zeitgemäßen Architektur und einem durchdachten Grundriss auf einer Ebene überzeugt das Haus durch eine gelungene Kombination aus Komfort, Funktionalität und Wohnqualität.
Die...
Ausstattung
* Moderner Bungalow aus dem Jahr 2010 mit durchdachtem Grundriss und ebenerdiger Wohnstruktur
* Ca. 121 m² Wohnfläche, großzügig auf 3 Zimmer verteilt, lichtdurchflutet und hell gestaltet
* Ca. 789 m² gepflegtes Grundstück mit Rasenfläche, sonniger Terrasse und Südwestausrichtung für optimale Lichtverhältnisse
*...
Preisinformation
1 Carportplatz
1 Stellplatz
Ist-Mieteinnahmen pro Jahr: 15.000,00 EUR
Weitere Informationen
Sonstiges
Ihre Werte sind bei uns in besten Händen
DAHLER ist auf die Vermittlung hochwertiger Wohnimmobilien in bevorzugten Lagen spezialisiert. Seit über 30 Jahren wird unser Unternehmen von Kirsten und Björn Dahler geführt und setzt mit Innovationskraft und Servicequalität Maßstäbe in der Branche. Unsere mehr als...
Anbieter der Immobilie

Online-ID: 2mpuh53
Referenznummer: D-POT8682-LIV
Finde Angebote wie dieses
Hier geht es zu unserem Impressum, den Allgemeinen Geschäftsbedingungen, den Hinweisen zum Datenschutz und nutzungsbasierter Online-Werbung.