
Zgraja Immobilien
Frau Mirell Zgraja
017 ···
Nr. anzeigenPreise & Kosten
Provision für Käufer
3,57% incl. 19% MwSt.
Die Provision ist verdient und fällig durch Beurkundung der Immobilie.
Lage
Das angebotene Objekt befindet sich in der Stadt Rastatt, im Bundesland Baden-Württemberg. Die Stadt liegt am westlichen Rand des Schwarzwaldes und ist aufgrund ihrer Lage nahe der französischen Grenze auch als Tor zum Elsass bekannt.
Die Immobilie liegt in einer ruhigen Wohngegend in der Nähe des Stadtzentrums...
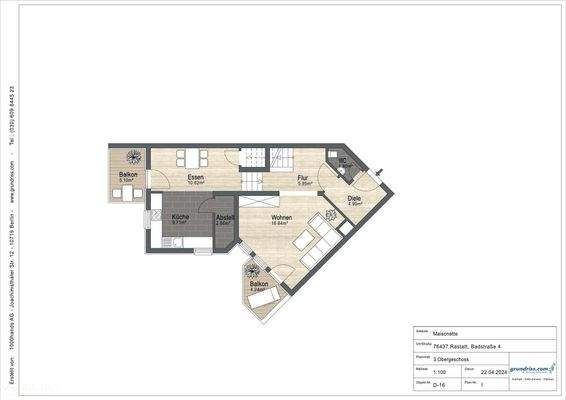
Die Wohnung
Kategorie
Maisonette
Wohnungslage
3. Geschoss
Bezug
nach Absprache
Wohnanlage
Energie & Heizung
Warum sehe ich diese Anzeige? – Du siehst diese Anzeige basierend auf Ihrer Navigation auf unserer Website und den Suchkriterien, die du verwendet hast.
Energieausweistyp
Verbrauchsausweis
Gebäudetyp
Wohngebäude
Wesentliche Energieträger
Fernwärme
Gültigkeit
18.11.2013 bis 08.08.2027
Effizienzklasse
E
Endenergieverbrauch
148,70 kWh/(m²·a) - Warmwasser enthalten
Weitere Energiedaten
Energieträger
Fernwärme
Details
Objektbeschreibung
Diese gepflegte Maisonette-Wohnung im dritten Obergeschoss eines Mehrfamilienhauses bietet auf 124 m² genügend Platz für Paare oder kleine Familien. Die Wohnung verfügt über 3,5 Zimmer, verteilt auf zwei Schlafzimmer, ein Badezimmer und ein Gäste-WC. Die großzügige offene Einbauküche bietet ausreichend Stauraum.
Das...
Ausstattung
Highlights dieser wundervollen Maisonette Wohnung!
+ 2021 neu errichtete Heizung
+ Die Fassade wurde bereits gedämmt und neu gestrichen
+ Die Wohnung verfügt über eine Klimaanlage
+ Einbauküche inklusive
+ 4 Balkone auf zwei Ebenen
+ Fußbodenheizung
+ Bodenbelag Fliesen 2005 verlegt
+ Badezimmer...
Preisinformation
1 Tiefgaragenstellplatz, Kaufpreis: 15.000,00 EUR
Weitere Informationen
Sonstiges
Wir unterstützen Sie sehr gerne in der Finanzierungsberatung! Aus über 300 Banken vergleichen wir für Sie das beste auf Sie zugeschnittene Angebot. Für Sie völlig kostenfrei. Sprechen Sie uns darauf an.
Homepage - https://zgraja-immobilien.de/
Stichworte
Tiefgarage vorhanden, Duplex-Stellplatz...
Dokumente
Anbieter der Immobilie
Zgraja Immobilien
Selbacher Weg 39, 76593 Gernsbach
Online-ID: 2mpuw5q
Referenznummer: 90
Finde Angebote wie dieses
Hier geht es zu unserem Impressum, den Allgemeinen Geschäftsbedingungen, den Hinweisen zum Datenschutz und nutzungsbasierter Online-Werbung.