Version: 8.25.1Navigation überspringen
1.275.000 €
574 m²  •  862 m² Grundstück
Immowelt logo

Haus zum Kauf
1275000 €
2.221 €/m²
574 m²  •  862 m² Grundstück

LINZ-URFAHR: Familien-Villa oder bewilligtes Wohnprojekt!

Das Objekt befindet sich in einer erstklassigen Lage in 4040 Linz-Urfahr.

Die Immobilie hat bis zu 6 Stellplätzen für Ihre Investition.

In der bereits bewilligten Planung sind 8 Wohneinheiten vorgesehen mit insgesamt 574 m² Wohnfläche. Plus ca. 290 m² Außenflächen wie Terrasse/Loggia/Balkon.

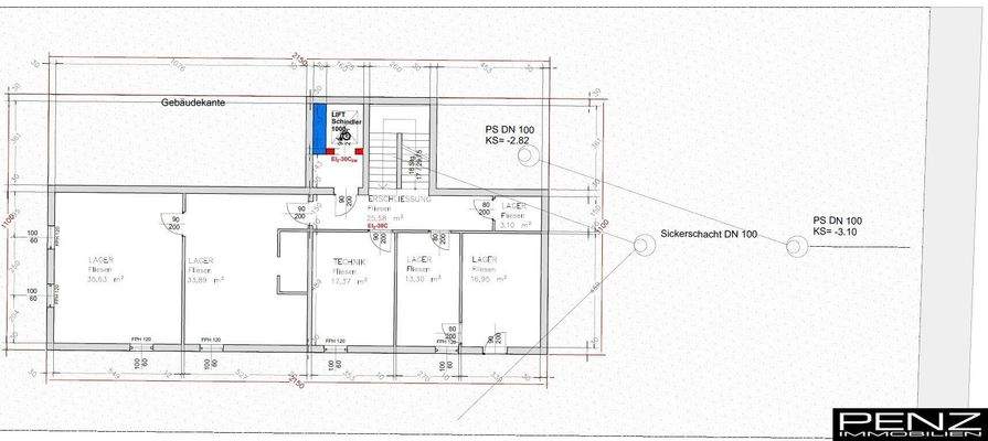
Der Bestandskeller des Hauses hat nochmals ca. 146 m² Nutzfläche.

Vor dem Haus gibt es ein Carport und Parkplätze. Das Projekt ist als Ausbauhaus konzipiert, was Ihnen die Möglichkeit gibt, die Immobilie nach Ihren individuellen Bedürfnissen und Wünschen zu gestalten. Die Baubewilligung ist vorhanden, was Ihnen Zeit und Aufwand sparen wird. Projektpläne sowie Altbestandspläne sind vorhanden.

Die Verkehrsanbindung ist ausgezeichnet, mit Bus- und Straßenbahnhaltestellen in unmittelbarer Nähe und einem einfachen Autobahnanschluss.

Die Umgebung der Immobilie bietet alles, was man für ein komfortables Leben benötigt. In der Nähe finden Sie alles, was das tägliche Leben einfacher macht, einschließlich Ärzten, Apotheken, Kindergärten, Schulen, Supermärkten und Bäckereien. Ihre zukünftigen Mieter werden sich hier sicherlich wohl fühlen.

Nutzen Sie diese Gelegenheit und investieren Sie in dieses Entwicklungsobjekt in einer der aufstrebenden Städte Österreichs.

 

Der Vermittler ist als Doppelmakler tätig.

Weitere schöne Immobilien finden Sie bei uns auf der Homepage:

https://www.penzimmobilien.at

Infrastruktur / Entfernungen

Gesundheit
Arzt <500m
Apotheke <1.000m
Krankenhaus <2.500m
Klinik <2.500m

Kinder & Schulen
Kindergarten <500m
Schule <1.000m
Universität <2.000m
Höhere Schule <2.000m

Nahversorgung
Supermarkt <1.000m
Bäckerei <1.000m
Einkaufszentrum <1.500m

Sonstige
Bank <1.000m
Geldautomat <1.000m
Post <1.500m
Polizei <1.000m

Verkehr
Bus <500m
Straßenbahn <1.000m
Bahnhof <1.500m
Autobahnanschluss <500m
Flughafen <4.500m

Angaben Entfernung Luftlinie / Quelle: OpenStreetMap

Merkmale

  • 862 m² Grundstück
  • 6 Stellplätze: 6 Außen-Stellplätze

Grundrisse

Grundrisse
1 / 6

Realisiere Dein Projekt

Bausubstanz und Energie

Heizwärmebedarf (HWB)

C

Gesamtenergieeffizienz (fGEE)

Der Anbieter hat keine Daten zum Energieausweis hinterlegt.
  • Baujahr1991
  • Zustand der ImmobilieAltbau (bis 1945)
  • HeizungsartZentralheizung
  • EnergieträgerGas
Immowelt logo

Preisdetails

Kaufpreis
1275000 €
2.221,25 €/m²
Provision für Käufer
3% des Kaufpreises zzgl. 20% USt.
Weitere Preisinformationen
6 Stellplätze

Lage

address-icon
PöstlingbergLinz (4040)
Familien-Villa
8 Wohneinheiten möglich
6 Parkplätze
attraktive Lage in Urfahr
schöner Altbestand
großer Keller

Weitere Informationen

Stichworte Carport vorhanden, Stellplatz vorhanden, Kellerfläche: 146,00 m², Bundesland: Oberösterreich, 5 Etagen

Weitere Services

Lust auf eine Besichtigung?
Eine Frage zur Immobilie?
Nachricht hinzufügen
Mit der Nutzung der oben angegebenen Telefonnummer oder durch Klicken auf „Kontaktieren“ akzeptierst Du die Allgemeinen Nutzungsbedingungen, denen Du jederzeit widersprechen kannst. Weitere Informationen zum Datenschutz

Über den Anbieter

Domgasse 5, 4020 LINZ
partner badge
Partnerschaft
Herr Maximilian NowakDein Kontakt
Online-ID: 24IQFEPP7UFD
Referenznummer: OBGC202512091305271384629044f01
PENZ Immobilien GmbH
Bewertung: 4,9 von 5 Sternen
Nachricht hinzufügen
Mit der Nutzung der oben angegebenen Telefonnummer oder durch Klicken auf „Kontaktieren“ akzeptierst Du die Allgemeinen Nutzungsbedingungen, denen Du jederzeit widersprechen kannst. Weitere Informationen zum Datenschutz
Wie zufrieden bist du mit dieser Seite (nicht mit der Immobilie selbst)?