
RE/MAX in Regensburg und Ostbayern
Herr Mario Jehl
004 ···
Nr. anzeigenPreise & Kosten
Provision für Käufer
3,57% aus dem Kaufpreis inkl. gesetzl. MwSt.
Lage
Ihr neues Zuhause erwartet Sie im Regensburger Stadtteil Königswiesen, abseits der Hauptverkehrswege - ruhig und grün gelegen.
So mit dem Königswiesenpark in unmittelbarer Nähe.
Fußläufig finden Sie alle Annehmlichkeiten des täglichen Bedarfs, Supermärkte, Ärzte und Bildungseinrichtungen.
Ideale...
Die Wohnung
Wohnungslage
4. Geschoss
Wohnanlage
Energie & Heizung
Warum sehe ich diese Anzeige? – Du siehst diese Anzeige basierend auf Ihrer Navigation auf unserer Website und den Suchkriterien, die du verwendet hast.
Energieausweistyp
Verbrauchsausweis
Gebäudetyp
Wohngebäude
Baujahr laut Energieausweis
1972
Wesentliche Energieträger
GAS
Gültigkeit
bis 30.10.2028
Effizienzklasse
C
Endenergieverbrauch
94,00 kWh/(m²·a)
Weitere Energiedaten
Energieträger
Gas
Heizungsart
Zentralheizung
Details
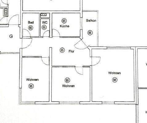
Objektbeschreibung
Willkommen in deinem neuen Zuhause im Herzen von Regensburg!
Diese charmante Etagenwohnung bietet alles, was das Herz begehrt.
Mit einer großzügigen Wohnfläche von 82 m² und zusätzlichen 5 m² Nutzfläche findest du hier reichlich Platz, um deinen Wohntraum zu verwirklichen.
Die Wohnung besticht durch ihre 3...
Ausstattung
Dieses Angebot zeichnet sich durch folgende Vorteile und Ausstattungsmerkmale aus:
* gepflegte Wohnanlage
* Schöner - feiner West Balkon
* Badezimmer
* Kellerabteil
Wichtige Info:
In den letzten Jahren wurde am Objekt und in der Garage umfangreiche Sanierungsarbeiten durchgeführt, die über...
Preisinformation
1 Parkhausstellplatz
Weitere Informationen
Sonstiges
Immobilienmakler :
Mario Jehl
Prüfeninger Schloßstr. 2, 93051 Regensburg
Tel.: 0941 30 77 0-234
Fax: 0941 30 77 0-17
Email: mario.jehl@remax.de
Aufsichtsbehörde: Verwaltungsgemeinschaft Saal/Donau, Gemeinde Teugn
Rathausstr. 4, 93342 Saal...
Anbieter der Immobilie
Online-ID: 2mpvw5a
Referenznummer: 1041-06640-2341
Finde Angebote wie dieses
Weitere Immobilien
Hier geht es zu unserem Impressum, den Allgemeinen Geschäftsbedingungen, den Hinweisen zum Datenschutz und nutzungsbasierter Online-Werbung.