

JF HOME ESTATE Immobilien
Frau Jenny Windsberger
+49 ···
Nr. anzeigenPreise & Kosten
Provision für Käufer
4,76 % inkl. gesetzl. Mehrwertsteuer
Lage
Willkommen in einer der schönsten und familienfreundlichsten Wohnlagen Bayreuths direkt an der historischen Eremitage. Eingebettet in grüne Natur, bieten sich hier unzählige Möglichkeiten für gemeinsame Spaziergänge, Fahrradtouren und entspannte Nachmittage im Park direkt vor Ihrer Haustür.
Trotz der ruhigen...
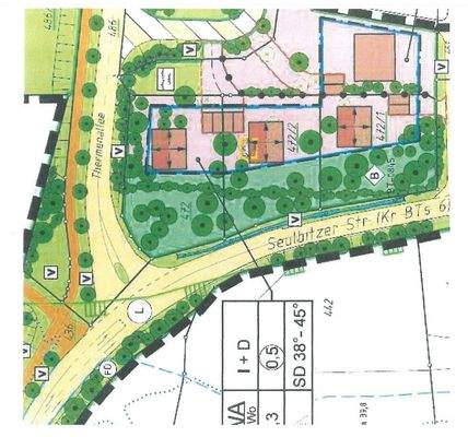
Das Grundstück
Details
Objektbeschreibung
In absoluter Bestlage von Bayreuth bietet sich Ihnen eine seltene Gelegenheit: Dieses großzügige Grundstück mit ca. 1.292 m² grenzt unmittelbar an die renommierte Eremitage, eine der eindrucksvollsten historischen Parkanlagen der Region.
Planung & Bebauung:
Ein gültiger Bebauungsplan ermöglicht den Bau Ihres...
Ausstattung
• Sehr kurzer Gehweg zur Eremitage
• Gewachsener Baumbestand vorhanden
• Grundstück - Teilerschlossen
• Bereits beglichener Kanalanschluss
• Ohne direkte Nachbarbebauung - Eckgrundstück
• Beliebte Wohnlage - perfekt für Familien
• Bebauung sofort möglich mit einem Einfamilienhaus
• Bebauung nach § 34...
Anbieter der Immobilie
JF HOME ESTATE Immobilien
Alexanderstraße 5, 95444 Bayreuth

Online-ID: 2mpwd5r
Referenznummer: 615
Finde Angebote wie dieses
Hier geht es zu unserem Impressum, den Allgemeinen Geschäftsbedingungen, den Hinweisen zum Datenschutz und nutzungsbasierter Online-Werbung.