




Werkstatt zum Kauf750000 €280 m² Lagerfläche
750000 €
280 m² Lagerfläche
Kapitalanlage mit Substanz und Potenzial!
Merkmale
- Bezug: nach Vereinbarung
- vermietet
- Keller
- 6 Stellplätze: 6 Außen-Stellplätze
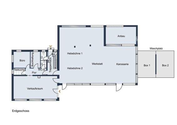
Grundrisse
Grundrisse
1 / 3
Realisiere Dein Projekt
Bausubstanz und Energie
Energieausweis
Endenergiebedarf (Wärme)
Endenergiebedarf (Strom)
Preisdetails
Kaufpreis
750000 €
Provision für Käufer
3,57% (inkl. 19% MwSt.) inkl. MwSt.
Weitere Preisinformationen
6 Stellplätze
Geschätzte Gesamtkosten
776.775 €1
Kaufpreis
750.000 €
Kaufnebenkosten
26.775 €
2Provision für Käufer (3,57%)
26.775 €
1Der angezeigte Wert ist eine automatisch berechnete Schätzung von immowelt.
2Bei den Angaben handelt es sich um ortsübliche Werte. Individuelle Kosten können abweichen.
Lage

Oberndorf, Oberndorf am Lech (86698)
Der Anbieter hat die genaue Adresse nicht freigegeben
Weitere Informationen
Weitere Services
Lust auf eine Besichtigung?
Eine Frage zur Immobilie?
Über den Anbieter
iad Deutschland GmbHMaklerbüro
Schleusenstraße 15-17, 60327 Frankfurt am Main
3 Jahre Partnerschaft
Herr Oliver StrobelDein Kontakt
Online-ID: 2mpxl5a
Referenznummer: iad-3774
Wie zufrieden bist du mit dieser Seite (nicht mit der Immobilie selbst)?


