
Crozilla.com
Lider nekretnine
+38 ···
Nr. anzeigenPreise & Kosten
Provision für Käufer
Bitte beachte, das Angebot kann bei Vertragsabschluss die Zahlung einer Provision beinhalten. Weitere Informationen erhältst Du vom Anbieter.
Die Immobilie
Zu diesem Angebot wurden vom Anbieter keine weiteren Daten hinterlegt. Für weitere Informationen bitte den Anbieter kontaktieren.
Nach Informationen fragenDetails
Objektbeschreibung
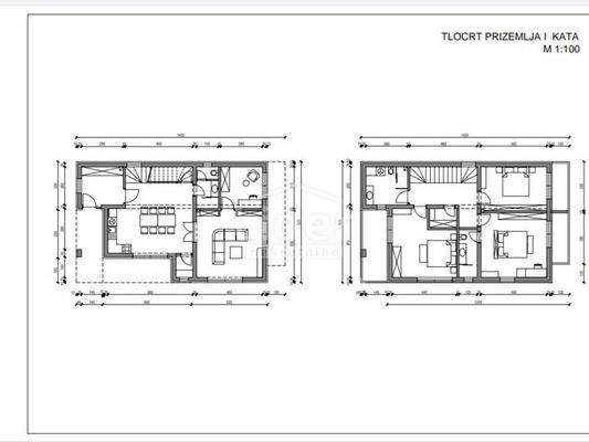
KLENOVICA Wir verkaufen ein Baugrundstück von 365 m2 mit einer Baugenehmigung P+1, zweistöckige Wohnung 4B+DB, Nebenkosten bezahlt, so können Sie sofort mit dem Bau beginnen. Die geplante Grundfläche des Hauses beträgt 95 m2. Im Erdgeschoss gibt es eine Küche mit einem großen Esszimmer, ein Wohnzimmer, ein Badezimmer, ein...
Weitere Informationen
Stichworte
Wohnfläche: 365,00 m², 1 Etagen
Anbieter der Immobilie
Crozilla.com
Nova cesta 60, 10000 ZAGREB
Online-ID: 2mpxw5r
Referenznummer: 18867915_0
Finde Angebote wie dieses
Hier geht es zu unserem Impressum, den Allgemeinen Geschäftsbedingungen, den Hinweisen zum Datenschutz und nutzungsbasierter Online-Werbung.