
McMakler GmbH
Ihr McMakler Team
080 ···
Nr. anzeigenPreise & Kosten
Provision für Käufer
Die Provision i.H.v. 3,57 % inkl. MwSt. ist mit Kaufvertragsbeurkundung fällig, sofern der Verkaufspreis über 83.000,00 € liegt.
Liegt der Verkaufspreis dagegen bei/unter 83. Weitere Informationen siehe Provisionshinweis.
Lage
Lage: Sackgassenlage mit weniger Verkehr und idealem Raum für Kinder zum Spielen und Toben
Bildung und Betreuung: Nur ca. 800 m zu Kindergarten und Schule - ideale Verhältnisse für Ihre Familie
Nahversorgung: Supermarkt, Postfiliale und Bankfiliale in unter 5 Gehminuten Entfernung
Anbindung: Nächster Bahnhof und...
Das Renditeobjekt
Baujahr
1812
Bezug
ab sofort
Energie & Heizung
Warum sehe ich diese Anzeige? – Du siehst diese Anzeige basierend auf Ihrer Navigation auf unserer Website und den Suchkriterien, die du verwendet hast.
Energieausweistyp
Bedarfsausweis
Gebäudetyp
Wohngebäude
Baujahr laut Energieausweis
1812
Wesentliche Energieträger
Gas
Effizienzklasse
G
Endenergiebedarf
216,50 kWh/(m²·a)
Weitere Energiedaten
Energieträger
Gas
Heizungsart
Zentralheizung
Details
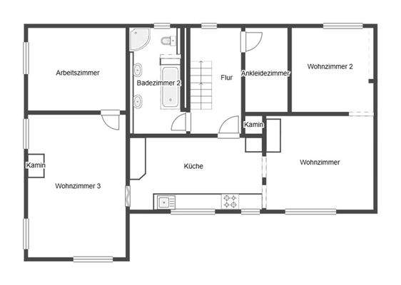
Objektbeschreibung
Objektnr: 1067596
Willkommen zu Ihrem neuen Zuhause - ein attraktives Einfamilienhaus, das Komfort, Funktionalität und Flexibilität vereint! Dieses gepflegte Haus erstreckt sich über zwei Etagen plus ausgebautes Dachgeschoss und bietet großzügigen Raum für Familien, Paare oder Selbstständige, die Wohnen und Arbeiten...
Ausstattung
+ In Sackgassenlage von Chemnitz, eignet sich das Objekt perfekt zum Eigennutz und gewerblicher Nutzung dank großer Industriehalle
+ Der teils sichtgeschützte Süd-Garten auf ca. 784 m² Grund lädt zum Verweilen ein
+ Das Objekt präsentiert sich in einem renovierungsbedürftigen Zustand - die letzten...
Weitere Informationen
Provisionshinweis
Die Provision i.H.v. 3,57 % inkl. MwSt. ist mit Kaufvertragsbeurkundung fällig, sofern der Verkaufspreis über 83.000,00 € liegt.
Liegt der Verkaufspreis dagegen bei/unter 83.000,00 €, ist die fest vereinbarte Mindestprovision i.H.v. mind. 5.950,00 € inkl. MwSt. mit Kaufvertragsbeurkundung fällig...
Anbieter der Immobilie
McMakler GmbH
Am Postbahnhof 17, 10243 Berlin
Online-ID: 2mpyg5m
Referenznummer: a662b89d6b
Finde Angebote wie dieses
Hier geht es zu unserem Impressum, den Allgemeinen Geschäftsbedingungen, den Hinweisen zum Datenschutz und nutzungsbasierter Online-Werbung.