
Michael Kuri Immobilien
076 ···
Nr. anzeigenPreise & Kosten
Provision für Käufer
3,57% (inkl. 19% gesetzl. MwSt.) vom notariell beurkundeten Kaufpreis
Die Käuferprovision beträgt 3,57% (inkl. 19% gesetzl. MwSt.) vom notariell beurkundeten Kaufpreis.
Lage
Die Immobilie liegt im Stadtteil "Broggingen", welches östlich vom Hauptort "Herbolzheim" gelegen ist.
Der Stadtteil ist ruhig und idyllisch gelegen und verspricht eine angenehme Atmosphäre abseits vom Trubel der Stadt.
In Broggingen sind sowohl ein Kindergarten als auch eine Grundschule vorhanden. Diverse...
Das Haus
Kategorie
Mehrfamilienhaus
Baujahr
1970
Derzeitige Nutzung
vermietet
Energie & Heizung
Warum sehe ich diese Anzeige? – Du siehst diese Anzeige basierend auf Ihrer Navigation auf unserer Website und den Suchkriterien, die du verwendet hast.
Energieausweistyp
Bedarfsausweis
Gebäudetyp
Wohngebäude
Wesentliche Energieträger
Öl
Gültigkeit
14.09.2023 bis 13.09.2033
Effizienzklasse
F
Endenergiebedarf
180,80 kWh/(m²·a)
Weitere Energiedaten
Energieträger
Öl
Heizungsart
Zentralheizung
Details
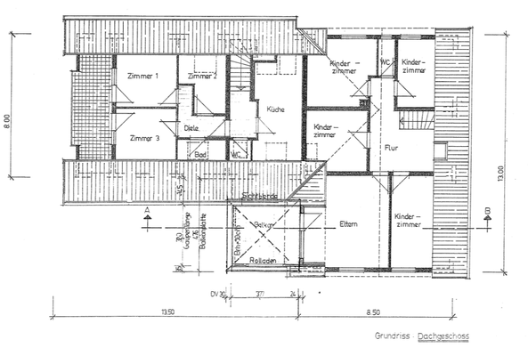
Objektbeschreibung
Dieses gepflegte Mehrfamilienhaus mit drei Wohneinheiten befindet sich in ruhiger und idyllischer Ortsrandlage von Broggingen, einem charmanten Stadtteil von Herbolzheim. Die erhöhte Lage ermöglicht einen weiten Blick über die Umgebung und bietet ideale Voraussetzungen für Familien, Mehrgenerationenwohnen oder...
Ausstattung
- Baujahr: ca. 1970 (Haupthaus) bzw. 1987 (Anbau)
- Wohnfläche gesamt ca. 319 m² (Haupthaus ca. 198 m², Anbau ca. 121 m²)
- Grundstücksfläche gesamt ca. 1.673 m² (Wohnbaufläche ca. 1.077 m², Freizeitgrundstück ca. 596 m²)
- 3 Wohneinheiten (bzw. bis zu 4 Wohneinheiten möglich)
- 2 Balkone
- Insgesamt 14...
Weitere Informationen
Sonstiges
Alle im Exposé genannten Angaben beruhen auf den Aussagen der Eigentümer und den uns zur Verfügung gestellten Unterlagen. Es wird daher keine Gewähr für die Richtigkeit der Angaben übernommen.
Stichworte
Anzahl Balkone: 1, Bundesland: Baden-Württemberg, 2 Etagen
Anbieter der Immobilie
Online-ID: 2mpz952
Referenznummer: 743+
Finde Angebote wie dieses
Hier geht es zu unserem Impressum, den Allgemeinen Geschäftsbedingungen, den Hinweisen zum Datenschutz und nutzungsbasierter Online-Werbung.