
Herzel Immobilien e.U.
+43 ···
Nr. anzeigenPreise & Kosten
Provision für Käufer
3% des Kaufpreises zzgl. 20% USt.
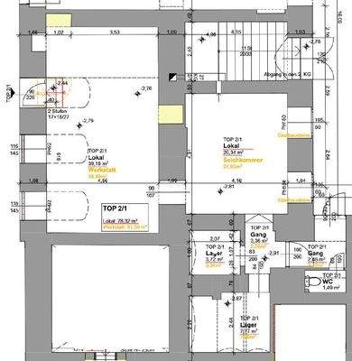
Die Ladenfläche
Baujahr
1828
Erdgeschoss
Energie & Heizung
Warum sehe ich diese Anzeige? – Du siehst diese Anzeige basierend auf Ihrer Navigation auf unserer Website und den Suchkriterien, die du verwendet hast.
Heizwärmebedarf (HWB)
203,70 kWh/(m²·a)
Gesamtenergieeffizienz (fGEE)
1,99
Weitere Energiedaten
Energieträger
Gas
Heizungsart
Etagenheizung, Fußbodenheizung
Details
Objektbeschreibung
_ANLAGEOBJEKT 1090! Geschäftslokal zum Kauf nahe Schottentor (befristet vermietet)!_
Zum Verkauf gelangt ein _generalsaniertes, schönes Geschäftslokal_ _in_ _gut frequentierter Lage Ecke Währinger Straße/Thurngasse und nahe Schottentor _in 1090 Wien. Der Eingang sowie die Schaufenster befinden sich in der...
Weitere Informationen
Stichworte
Nutzfläche: 78,32 m², Anzahl der separaten WCs: 1, Bundesland: Wien
Anbieter der Immobilie
Online-ID: 2mpz95c
Referenznummer: OBGC20251117104718839dd467fcf12
Finde Angebote wie dieses
Hier geht es zu unserem Impressum, den Allgemeinen Geschäftsbedingungen, den Hinweisen zum Datenschutz und nutzungsbasierter Online-Werbung.