
Immobilien Company Petra Emmer e. K.
Herr Falko Weber
004 ···
Nr. anzeigenPreise & Kosten
nicht in Warmmiete enthalten
Kaution
3.300,00
Warum sehe ich diese Anzeige? – Du siehst diese Anzeige basierend auf Ihrer Navigation auf unserer Website und den Suchkriterien, die du verwendet hast.
Lage
Der Stadtteil Medinghoven, in dem sich die Wohnanlage befindet, liegt im beliebten Ortsteil Duisdorf des Stadtbezirks Hardtberg.
- nächster Supermarkt ca. 10 Minuten fußläufig entfernt
- Apotheke fußläufig 2 Minuten entfernt
- Helios Krankenhaus ca. 500 Meter entfernt
- Schulen und Kindergärten maximal 500...
Die Wohnung
Wohnungslage
1. Geschoss
Bezug
ab sofort
Wohnanlage
Energie & Heizung
Warum sehe ich diese Anzeige? – Du siehst diese Anzeige basierend auf Ihrer Navigation auf unserer Website und den Suchkriterien, die du verwendet hast.
Energieausweistyp
Verbrauchsausweis
Gebäudetyp
Wohngebäude
Baujahr laut Energieausweis
2002
Wesentliche Energieträger
GAS
Gültigkeit
bis 20.06.2033
Effizienzklasse
E
Endenergieverbrauch
133,70 kWh/(m²·a)
Weitere Energiedaten
Energieträger
Gas
Heizungsart
Zentralheizung
Details
Objektbeschreibung
Dieser Mehrfamilienhaus-Wohnkomplex aus dem Jahr 1974 liegt in einer guten Lage in Bonn. Die Wohnanlage besteht aus 4 Mehrfamilienhäusern mit dazugehöriger Tiefgarage und Stellplätzen.
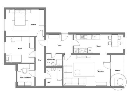
Die angebotene 4-Zimmer-Wohnung im 1. Obergeschoss verfügt über eine zentrale Diele, von der aus alle Räume der Wohnung erreichbar sind...
Ausstattung
- gepflegter Laminatboden
- geflieste Küche
- große Fenster
- großes Badezimmer mit Badewanne
- kleines Badezimmer mit Duschwanne
- großzügiger Balkon
- Personenaufzug
- Kellerraum
- Tiefgaragenstellplatz wenn gewünscht: 67,50 €
- Außenstellplatz wenn gewünscht: 85 €
Weitere Informationen
Stichworte
Anzahl der Schlafzimmer: 3, Anzahl der Badezimmer: 2, Anzahl Balkone: 1
Anbieter der Immobilie
Immobilien Company Petra Emmer e. K.
Am Haelentor 3, 50858 Köln
Online-ID: 2mpzn5y
Referenznummer: 26-1086
Finde Angebote wie dieses
Hier geht es zu unserem Impressum, den Allgemeinen Geschäftsbedingungen, den Hinweisen zum Datenschutz und nutzungsbasierter Online-Werbung.