
BF Bayerische Baufinanz GmbH
Frau Eileen Söder-Garms
089 ···
Nr. anzeigenPreise & Kosten
Provision für Käufer
3,57 % inkl. gse. MwSt. inkl. MwSt.
Bitte beachten Sie, dass dieses Angebot nur für Sie persönlich und nicht zur Weitergabe an Dritte bestimmt ist. Die Provision inkl. gesetzl. MwSt. ist nach notarieller Beurkundung verdient und fällig.
Lage
RUHIGE GRÜNE TRAUMLAGE FÜR ALT UND JUNG:
WILLKOMMEN IN FELDMOCHING:
Diese charmante Doppelhaushälfte befindet sich in Feldmoching, einem attraktiven und familienfreundlichen Stadtteil im Norden von München. Die Umgebung zeichnet sich durch eine Mischung aus urbanem Flair und grüner Idylle aus. U- und S-Bahn sind nur...
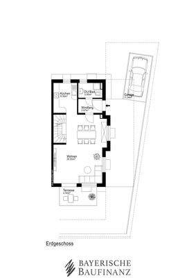
Das Haus
Kategorie
Doppelhaushälfte
Baujahr
2026
Energie & Heizung
Warum sehe ich diese Anzeige? – Du siehst diese Anzeige basierend auf Ihrer Navigation auf unserer Website und den Suchkriterien, die du verwendet hast.
Weitere Energiedaten
Haustyp
KfW 55
Energieträger
Elektro
Heizungsart
Fußbodenheizung, Luft-/Wasser-Wärmepumpe
Details
Objektbeschreibung
WOHNEN IN SEINER SCHÖNSTEN FORM:
FEINE DOPPELHAUSHÄLFTE FÜR SIE UND IHRE FAMILIE
Herzlich willkommen in Ihrem neuen Traumhaus in München-Feldmoching. Diese moderne und energieeffiziente Doppelhaushälfte (Haus B/rechte Haushälfte) besticht durch ihre ansprechende Architektur und die perfekte Lage. Das Projekt...
Ausstattung
DIE AUSSTATTUNG WIE SIE SIE SICH WÜNSCHEN:
Individuelle Ausstattungswünsche werden gerne berücksichtigt. Das Haus wird massiv in bester Qualität nach dem aktuellen GEG-Energieeffizienzstandard gebaut.
. Massivbauweise Stein auf Stein
. repräsentatives Eichenparkett in allen Wohn-
und Schlafräumen
...
Preisinformation
1 Stellplatz
Weitere Informationen
Sonstiges
Sie erreichen uns von Montag bis Freitag von 9 - 18 Uhr unter
Tel.: 089 / 550 550 und Mobil: 0171/1428281.
Bitte beachten Sie, dass wir Ihre Anfrage nur bearbeiten können, wenn Sie uns Ihre vollständigen Kontaktdaten inklusive Telefonnummer zukommen lassen. Selbstverständlich verwenden wir Ihre Daten...
Anbieter der Immobilie
BF Bayerische Baufinanz GmbH
Alexander-Fleming-Straße 111, 82152 Planegg
Online-ID: 2mpzu5u
Referenznummer: 15988
Finde Angebote wie dieses
Hier geht es zu unserem Impressum, den Allgemeinen Geschäftsbedingungen, den Hinweisen zum Datenschutz und nutzungsbasierter Online-Werbung.