
Müller Merkle Immobilien GmbH
Frau Tania Ziegler
Kontaktiere den Anbieter schriftlich, es ist keine Telefonnummer hinterlegt.
Preise & Kosten
Kaution
5850
Warum sehe ich diese Anzeige? – Du siehst diese Anzeige basierend auf Ihrer Navigation auf unserer Website und den Suchkriterien, die du verwendet hast.
Lage
Im Süden der bayerischen Landeshauptstadt liegt Fürstenried - ein Stadtteil, der sich seit seiner Entstehung als Wohnviertel einen ruhigen, lebensnahen und familienfreundlichen Charakter bewahrt hat. Geprägt von weitläufigen Wohnanlagen, Einfamilienhäusern und viel Grün, vereint Fürstenried gewachsene Strukturen mit hoher...
Die Wohnung
Kategorie
Apartment
Wohnungslage
3. Geschoss
Bezug
01.02.2026
Wohnanlage
Details
Objektbeschreibung
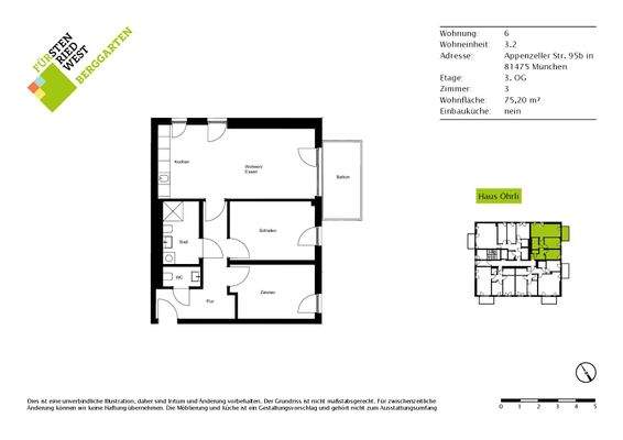
Diese helle und gut geschnittene 3-Zimmer-Wohnung überzeugt durch ihre klare Raumaufteilung und den praktischen Grundriss. Beim Betreten der Wohnung gelangen Sie in den zentralen Flur, von dem aus alle Räume erreichbar sind. Direkt gegenüber von der Eingangstür befindet sich ein separates WC, daneben das moderne Bad mit...
Ausstattung
Auch im Innenbereich setzt der BERGGARTEN auf zeitgemäßen Wohnkomfort und nachhaltige Qualität. Großformatige, bodentiefe Fenster in Holz-Aluminium-Ausführung sorgen für helle, lichtdurchflutete Räume. Parkettböden in Eiche, elegante Fliesen in Bad und Küche sowie eine Fußbodenheizung bieten eine hochwertige Basis für die...
Weitere Informationen
Sonstiges
Bei den Bildern handelt es sich um unverbindliche Visualisierungen und Bilder einer Musterwohnung. Gerne können Sie sich im Zuge einer Besichtigung der Musterwohnung vom BERGGARTEN überzeugen.
WEITERE INFOS UNTER WWW.BERGGARTEN-FUERSTENRIEDWEST.DE
HAFTUNGSAUSSCHLUSS:
Diese Anzeige dient nur der...
Dokumente
Anbieter der Immobilie
Müller Merkle Immobilien GmbH
Galileistraße 1, 69115 Heidelberg
Frau Tania Ziegler
Dein Ansprechpartner
Kontaktiere den Anbieter schriftlich, es ist keine Telefonnummer hinterlegt.
Online-ID: 2mq2z5j
Referenznummer: fo_06#EpnLD
Finde Angebote wie dieses
Weitere Immobilien
Hier geht es zu unserem Impressum, den Allgemeinen Geschäftsbedingungen, den Hinweisen zum Datenschutz und nutzungsbasierter Online-Werbung.