RIJEKA, KANTRIDA - 155 m² große Wohnung in einem luxuriösen Neubau, nur 250 Meter vom Meer entfernt, mit Garage und Panoramablick auf das Meer
RIJEKA, KANTRIDA - 155 m² große Wohnung in einem luxuriösen Neubau nur 250 Meter vom Meer entfernt mit Garage und Panoramablick auf das Meer
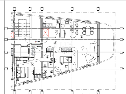
DUX präsentiert exklusiv einen besonderen Neubau zwischen der Stadt Rijeka und dem schönen Opatija. Das hochwertige Gebäude befindet sich im Wohnviertel Kantrida, einem der hochwertigsten und begehrtesten Wohnviertel in der Kvarner Bucht. Dieses Gebäude mit insgesamt 29 exklusiven Wohnungen liegt in einer Sackgasse ohne Verkehr, mit komplett bebauten Nachbarn, was einen sicheren Meerblick und eine hochwertige und ruhige Wohnumgebung garantiert. Es ist wichtig zu beachten, dass dieses Gebäude von jeder Wohnung aus einen Panoramablick auf das Meer bietet, sogar vom Erdgeschoss aus. Das Gebäude verfügt über zwei Tiefgaragenetagen mit 68 Parkplätzen und zu jeder Wohnung gehörenden Abstellräumen. Die Wohnung S5, 155 m², befindet sich im 1. Stock und besteht aus zwei Schlafzimmern, zwei komfortablen Badezimmern, einer Küche, einem Esszimmer und einem Wohnzimmer. Die Wohnung ist mit einer schönen überdachten Terrasse verbunden, von der aus sich ein wahrer Panoramablick auf das Meer bietet. Die Bruttofläche der Wohnung beträgt 290 m2. Die Nutzfläche der Wohnung beträgt 101 m2, während die Nettofläche mit Koeffizienten (Terrasse, Garage und Abstellraum) 155 m2 beträgt. Vorteile und Besonderheiten der Gebäudeausstattung: - Jedes Wohnzimmer ist nach Süden ausgerichtet - Das Gebäude ist in 3 Eingänge unterteilt, was Privatsphäre und eine unterteilte Mikronachbarschaft gewährleistet, in der Sie eine Gemeinschaft bilden - Bequeme Parkplätze in der Garage - Aufzug - Sicherheitstüren - Fußbodenheizung in der gesamten Wohnung, Wärmepumpe - Deckenhöhe 280 cm!!!! - Aluminiumtischlerei, große nach Süden ausgerichtete Schiebewände + elektrische Rollläden - Österreichisches Parkett - Hochwertige Keramik und Sanitärkeramik der Spitzenklasse - Schalldämmung in den Wänden Zur Wohnung gehören ein bequemer Parkplatz in der Garage und ein privater Abstellraum. Diese Mikrolage ist fantastisch, mit einem Blick aus der Vogelperspektive auf das Meer von 250 Metern. Sie erreichen das Meer zu Fuß in nur 4 Minuten. In unmittelbarer Nähe befinden sich Geschäfte, Schulen, ein Fußballplatz, eine Sporthalle, ein Strand, ein städtisches Schwimmbad für Schwimmer und Wasserballspieler sowie Restaurants. Die ideale Umgebung unterstreicht auch die Nähe zum Zentrum von Rijeka, das in 10 Minuten erreichbar ist, sowie die Nähe zu Opatija, das nur 12 Autominuten entfernt ist. Nutzen Sie die Gelegenheit, einen hochwertigen Neubau in Kvarner zu kaufen, eine ideale Gelegenheit, in einem Neubau mit Panoramablick auf das Meer zu wohnen. Um einen Besichtigungstermin zu vereinbaren, rufen Sie den Makler vertrauensvoll an - eine Beratung auf Deutsch ist möglich.
Sehr geehrte Kunden, die Agenturprovision wird gemäß den Allgemeinen Geschäftsbedingungen berechnet: www.dux-nekretnine.hr/opci-uvjeti-poslovanja
ID CODE: 42118