
FW Immobilien Service Günther Weisensel
Herr Günther Weisensel 34 Jahre Erfahrung, Zuverlässigkeit und Kompetenz
Kontaktiere den Anbieter schriftlich, es ist keine Telefonnummer hinterlegt.
Preise & Kosten
Provision für Käufer
3,57% (inkl. MwSt.)
Das Renditeobjekt
Kategorie
Mehrfamilienhaus
Baujahr
1981
Bezug
sofort
Energie & Heizung
Warum sehe ich diese Anzeige? – Du siehst diese Anzeige basierend auf Ihrer Navigation auf unserer Website und den Suchkriterien, die du verwendet hast.
Weitere Energiedaten
Energieträger
Gas
Heizungsart
Fußbodenheizung, Zentralheizung
Details
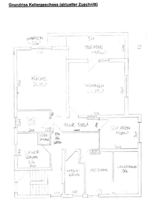
Objektbeschreibung
Zum Verkauf steht ein freistehendes, unterkellertes Mehrfamilienhaus mit insgesamt fünf Wohneinheiten in einem Ortsteil von Bad Kissingen. Das im Jahr 1981 errichtete Gebäude bietet eine Wohnfläche von ca. 420 m² und steht auf einem Grundstück mit einer Fläche von ca. 390 m². Zusätzlich gehört ein Bauerwartungsland mit einer...
Weitere Informationen
Sonstiges
Maklercourtage: 3,57 % (inkl. MwSt)
Wir berechnen in der Regel folgende Maklercourtage vom Käufer beim Abschluss eines notariellen Kaufvertrags:
Kaufpreis: bis 30.000,-- EUR 7,14% (inkl. MwSt.)
Kaufpreis: ab 30.001,-- EUR bis 76.000,- EUR 5,95% (inkl. MwSt.)
Kaufpreis: ab 76.001,-- EUR bis...
Anbieter der Immobilie
FW Immobilien Service Günther Weisensel
Schönbornstraße 47, 97440 Werneck
Herr Günther Weisensel 34 Jahre Erfahrung, Zuverlässigkeit und Kompetenz
Dein Ansprechpartner
Kontaktiere den Anbieter schriftlich, es ist keine Telefonnummer hinterlegt.
Online-ID: 2mq3w52
Finde Angebote wie dieses
Hier geht es zu unserem Impressum, den Allgemeinen Geschäftsbedingungen, den Hinweisen zum Datenschutz und nutzungsbasierter Online-Werbung.