
AREV Immobilien GmbH
Frau Christa Sinzinger
T: ···
Nr. anzeigenPreise & Kosten
inkl. Betriebskosten
Provision für Mieter
Gemäß Erstauftraggeberprinzip bezahlt der Abgeber die Provision.
Warum sehe ich diese Anzeige? – Du siehst diese Anzeige basierend auf Ihrer Navigation auf unserer Website und den Suchkriterien, die du verwendet hast.
Lage
Die Wohnung in der Leopold-Bauer-Straße in Wels besticht durch ihre zentrale Lage, die alle Annehmlichkeiten des täglichen Lebens in unmittelbarer Nähe bietet. Ärzte, Apotheken und eine Klinik sind schnell erreichbar, ebenso wie Schulen und Kindergärten für die jüngsten Bewohner. Supermärkte, Bäckereien und Banken sorgen für...
Die Wohnung
Wohnungslage
2. Geschoss
Bezug
01.04.2026
Energie & Heizung
Warum sehe ich diese Anzeige? – Du siehst diese Anzeige basierend auf Ihrer Navigation auf unserer Website und den Suchkriterien, die du verwendet hast.
Heizwärmebedarf (HWB)
32,50 kWh/(m²·a)
Details
Objektbeschreibung
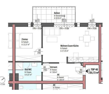
Willkommen in Ihrem neuen Zuhause in der charmanten Stadt Wels, Oberösterreich! Diese wunderschöne 2-Zimmer-Wohnung in der begehrten 2. Etage bietet auf 55,73 m² alles, was Sie für ein komfortables und modernes Wohnen benötigen.
Die Wohnung besticht durch ihre durchdachte Raumaufteilung und die lichtdurchfluteten Räume...
Preisinformation
Nettokaltmiete: 624,40 EUR
Weitere Informationen
Stichworte
Anzahl Balkone: 1, Balkon-Terrassen-Fläche: 9,26 m², Bundesland: Oberösterreich, Wohnungsnr.: 46
Anbieter der Immobilie

AREV Immobilien GmbH
Hannesgrub Süd 6, 4911 RIED IM INNKREIS
Online-ID: 2mq445t
Referenznummer: OBGC2025122211401427833505e7ed3
Finde Angebote wie dieses
Hier geht es zu unserem Impressum, den Allgemeinen Geschäftsbedingungen, den Hinweisen zum Datenschutz und nutzungsbasierter Online-Werbung.