

KELLERMEIER & SALGE GMBH Immobilien
Herr Matthias Kellermeier
057 ···
Nr. anzeigenPreise & Kosten
Provision für Käufer
provisionsfrei
Lage
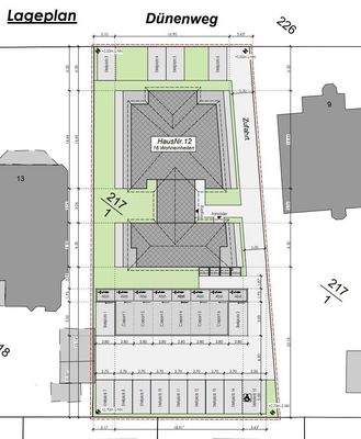
In einer der begehrtesten Lagen der Nordseeküste entsteht eine hochwertige Neubau-Eigentumswohnanlage in Cuxhaven-Duhnen, nur wenige Schritte vom Deich, vom Strand und vom einzigartigen Wattenmeer entfernt. Die Immobilie vereint moderne Architektur, nachhaltige Technik und eine erstklassige Lage zu einer ebenso attraktiven...
Die Wohnung
Wohnanlage
Energie & Heizung
Warum sehe ich diese Anzeige? – Du siehst diese Anzeige basierend auf Ihrer Navigation auf unserer Website und den Suchkriterien, die du verwendet hast.
Energieausweis: für diesen Gebäudetyp nicht notwendig
Weitere Energiedaten
Heizungsart
Luft-/Wasser-Wärmepumpe
Details
Objektbeschreibung
Exklusive Ferienwohnanlage - 16 hochwertige Eigentumswohnungen
In attraktiver Lage entsteht ab Sommer 2026 eine moderne Ferienwohnanlage mit 16 exklusiven Eigentumswohnungen zwischen 40 und 84 m². Die barrierefrei erreichbaren Wohnungen überzeugen durch eine hochwertige Bauausführung, stilvolle Ausstattung und...
Ausstattung
Individuelle Ausstattungsmerkmale:
- elektrisch betriebene Rollläden
- Fußbodenheizung
- Aufzugsanlage ausgestattet mit Sicherheitsnotrufsystem
- Fenster mit Dreifach-Wärme-Schutzverglasung
- ausgewählte Fußbodenbeläge mit hochwertigen strapazierfähigen Planken in Parkettoptik
- Photovoltaikanlage mit...
Weitere Informationen
Sonstiges
Ist Ihr Interesse an dieser wunderschönen Ferien- / Eigentumswohnanlage geweckt?
Dann setzen Sie sich direkt mit uns in Verbindung!
Gerne teilen wir Ihnen nach vollständiger Adressangabe die Anschrift des angefragten Objektes sowie viele weitere Informationen mit.
Sie erreichen uns montags...
Dokumente
Anbieter der Immobilie

Online-ID: 2mq465t
Referenznummer: 21401-15
Finde Angebote wie dieses
Hier geht es zu unserem Impressum, den Allgemeinen Geschäftsbedingungen, den Hinweisen zum Datenschutz und nutzungsbasierter Online-Werbung.