

Leo Wacker Immobilien
Herr Leo Wacker
030 ···
Nr. anzeigenPreise & Kosten
Provision für Käufer
3,57 % vom Kaufpreis inkl. MwSt.
Lage
Das Haus befindet sich nur wenige hundert Meter vom wunderschönen Körnerpark entfernt und in unmittelbarer Nähe zum charmanten und angesagten Richardplatz.
Der Richardplatz ist einer der angesagten Plätze in Neukölln mit Restaurants, kleinen Geschäften für den täglichen Bedarf, Baumbestand und schönen Bauwerken...
Die Wohnung
Wohnanlage
Energie & Heizung
Warum sehe ich diese Anzeige? – Du siehst diese Anzeige basierend auf Ihrer Navigation auf unserer Website und den Suchkriterien, die du verwendet hast.
Energieausweistyp
Verbrauchsausweis
Gebäudetyp
Wohngebäude
Baujahr laut Energieausweis
1880
Wesentliche Energieträger
Fernwärme
Gültigkeit
seit 28.03.2023
Effizienzklasse
D
Endenergieverbrauch
119,10 kWh/(m²·a)
Weitere Energiedaten
Energieträger
Fernwärme
Heizungsart
Zentralheizung
Details
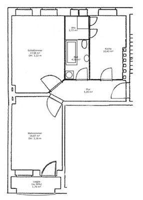
Objektbeschreibung
Zimmer: 2
Deckenhöhen: ca. 3,2 m
Fenster: Kunststoff-Doppelverglaste Iso-Fenster
Boden: Teppich auf wahrscheinlich alten Dielen
Stuck: ja
Loggia: ja
Bad: mit Wanne
Abstellkammer: ja
Keller: ja
Heizung: Fernwärme
Zustand: gepflegt
Vermietet...
Weitere Informationen
Sonstiges
Info: Anzahl Etagen: 5
Ganz wichtig bei der Anfrage: Teilen Sie uns Ihre vollständigen Kontaktdaten: Vor- und Nachnamen, Adresse, Mail und Telefonnummer mit.
Seit einigen Jahren gilt in Deutschland das Geldwäschegesetz. Nach diesem Gesetz ist jedes Immobilienbüro verpflichtet, bei Kontaktaufnahme die...
Anbieter der Immobilie
Leo Wacker Immobilien
Gleditschstr. 66, 10781 Berlin

Online-ID: 2mq4h5s
Referenznummer: B 3
Finde Angebote wie dieses
Hier geht es zu unserem Impressum, den Allgemeinen Geschäftsbedingungen, den Hinweisen zum Datenschutz und nutzungsbasierter Online-Werbung.