
R2 Immobilien
Herr Rene Richardsen
+49 ···
Nr. anzeigenPreise & Kosten
Provision für Käufer
i.H.v. 3,57% inkl. MwSt.
Lage
Die Stadt Leck liegt in Schleswig-Holstein nahe der dänischen Grenze und ist bekannt für ihre reizvolle Lage im Norden Deutschlands. Der Ort bietet eine ausgewogene Mischung aus ländlichem Charme und einer gut ausgebauten Infrastruktur. Insbesondere die landschaftliche Umgebung mit der Nähe zur Nordsee und den weiten...
Das Haus
Kategorie
Doppelhaushälfte
Baujahr
2003
Bezug
28.02.2026
Energie & Heizung
Warum sehe ich diese Anzeige? – Du siehst diese Anzeige basierend auf Ihrer Navigation auf unserer Website und den Suchkriterien, die du verwendet hast.
Energieausweistyp
Verbrauchsausweis
Gebäudetyp
Wohngebäude
Baujahr laut Energieausweis
2003
Wesentliche Energieträger
Erdgas L
Gültigkeit
17.12.2025 bis 17.12.2035
Effizienzklasse
D
Endenergieverbrauch
111,80 kWh/(m²·a)
Weitere Energiedaten
Heizungsart
Zentralheizung
Details
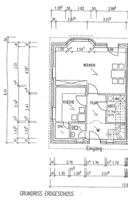
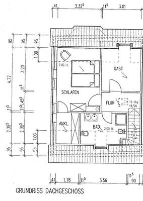
Objektbeschreibung
Diese ansprechende Doppelhaushälfte, erbaut im Jahr 2003, überzeugt durch ihren sehr gepflegten Zustand, einen durchdachten Grundriss und eine angenehme Wohnatmosphäre. Auf zwei Etagen stehen ca. 85 m² Wohnfläche zur Verfügung, ergänzt durch zusätzliche Nutzfläche sowie einen Dachboden mit Ausbaupotenzial. Die Immobilie wurde...
Ausstattung
- Baujahr: ca. 2003
- Bauweise: massiv, konventionell
- Wohnfläche: ca. 85 m²
- Nutzfläche: ca. 20 m²
- Zimmer: 3,5
- Etagen: 2
- Kunststofffenster mit Isolierverglasung
- Pfannendeckung
- Gas-Zentralheizung
- Fußbodenheizung in den gefliesten Räumen
- Einbauküche
- Gäste-WC im...
Preisinformation
1 Carportplatz
Weitere Informationen
Stichworte
Carport vorhanden, Anzahl der Schlafzimmer: 2, Anzahl der Badezimmer: 2, Anzahl Terrassen: 1, 2 Etagen
Sonstiges/Wohnen: Dachboden
Dokumente
Anbieter der Immobilie
R2 Immobilien
Am Sportplatz 2B, 24980 Nordhackstedt

Online-ID: 2mq5r5s
Referenznummer: 171
Finde Angebote wie dieses
Hier geht es zu unserem Impressum, den Allgemeinen Geschäftsbedingungen, den Hinweisen zum Datenschutz und nutzungsbasierter Online-Werbung.