
Volksbank Jade-Weser Immobilien GmbH
Frau Corinna Müller
004 ···
Nr. anzeigenPreise & Kosten
Provision für Käufer
3,57% inkl. MwSt.
Lage
Schortens ist eine Stadt im Landkreis Friesland in Niedersachsen. Der Ort erhielt 2005 die Stadtrechte und ist seitdem nach Varel die zweitgrößte Stadt im Landkreis Friesland. Seit dem 6. Dezember 2011 ist die Stadt staatlich anerkannter Erholungsort.
Die Stadt umfasst die zwölf Stadtteile Schortens, Heidmühle...
Das Haus
Kategorie
Einfamilienhaus
Baujahr
1991
Bezug
Vereinbarung
Energie & Heizung
Warum sehe ich diese Anzeige? – Du siehst diese Anzeige basierend auf Ihrer Navigation auf unserer Website und den Suchkriterien, die du verwendet hast.
Energieausweistyp
Bedarfsausweis
Gebäudetyp
Wohngebäude
Baujahr laut Energieausweis
1991
Wesentliche Energieträger
GAS
Gültigkeit
bis 15.10.2035
Effizienzklasse
E
Endenergiebedarf
146,90 kWh/(m²·a)
Weitere Energiedaten
Energieträger
Gas
Heizungsart
offener Kamin
Details
Objektbeschreibung
Vor den Toren Wilhelmshavens, im beschaulichen Middelsfähr, befindet sich dieser geräumige Bungalow mit ausgebautem Dachgeschoss.
Auf einem pflegeleichten, ca. 774 m² großen Eigentumsgrundstück, befindet sich die Immobilie mit großzügiger Auffahrt und geräumiger Garage.
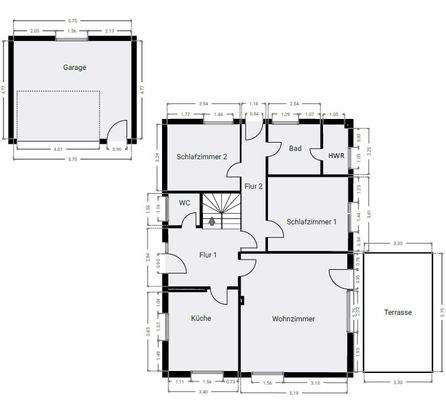
Das Haus bietet Ihnen im Erdgeschoss die...
Ausstattung
- Duschbad und Gäste-WC
- Kaminofen
- Ebenerdiges Wohnen möglich
- Dachgeschoss ausgebaut
- Gaszentralheizung Bj. 2020
- Große Garage
Preisinformation
1 Garagenstellplatz
Weitere Informationen
Stichworte
Nutzfläche: 30,39 m², Anzahl der Schlafzimmer: 4, Anzahl der Badezimmer: 1, Anzahl der separaten WCs: 1, Anzahl Terrassen: 1
Anbieter der Immobilie
Volksbank Jade-Weser Immobilien GmbH
Bürgermeister-Heidenreich-Str. 5, 26316 Varel
Online-ID: 2mq7259
Referenznummer: 9727
Finde Angebote wie dieses
Hier geht es zu unserem Impressum, den Allgemeinen Geschäftsbedingungen, den Hinweisen zum Datenschutz und nutzungsbasierter Online-Werbung.