


1 / 12



1 / 12
Sonstiges zum Kauf - Erstbezug • als Kapitalanlage geeignet172000 €172.000 €11.838 €/m²25,5 m² • 634 m² Grundstück
172000 €172.000 €
11.838 €/m²
25,5 m² • 634 m² Grundstück
4% Hotelzimmer als Kapitalanlage in Konstanz am Bodensee,KFW40, Indexanp.,20-jähriger Pachtvertrag
Hotelzimmer als Kapitalanlage in Konstanz am Bodensee.
Das Hotelprojekt "The Reed" entsteht in Konstanz-Wollmatingen und umfasst 89 moderne Hotelzimmer, die als langfristige Kapitalanlage mit festem Pachtvertrag (20 Jahre + Verlängerungsoption) angeboten werden. (inkl. Indexanpassung!)
Der Hotelbetrieb erfolgt durch Zleep Hotels, eine skandinavische Hotelmarke und Teil der H World International (ehemals Steigenberger Gruppe). Die Marke ist europaweit aktiv und auf effiziente, moderne Stadthotels spezialisiert. Für Investoren bedeutet dies einen professionellen Betrieb mit klaren Standards und einer langfristigen strategischen Ausrichtung.
Der Betreiber übernimmt den vollständigen Hotelbetrieb, einschließlich Vermietung, Personal, Instandhaltung der Gemeinschaftsflächen sowie die laufende Organisation des Hauses. Auch die Möblierung und der Austausch von Ausstattungselementen im Rahmen des Betreiberkonzepts liegen in der Verantwortung des Hotelbetreibers. Für Anleger entsteht dadurch ein Investment ohne operativen Aufwand.
Für das Hotelprojekt besteht ein langfristiger Pachtvertrag mit einer festen Laufzeit von 20 Jahren sowie zwei Verlängerungsoptionen um jeweils fünf Jahre. Die Miete wird unabhängig von der tatsächlichen Auslastung des einzelnen Zimmers gezahlt und bietet damit eine hohe Planbarkeit der Einnahmen. Zusätzlich ist eine Indexierung der Pacht vorgesehen, um einen teilweisen Inflationsschutz zu gewährleisten.
Übersicht der Zimmertypen:
Standard-Hotelzimmer
Zimmergröße: ca. 14,53 m²
Allgemeinflächen: 10,97 m²
Komfort-Zimmer
Zimmergröße: ca. 20,69 m²
Allgemeinflächen: 15,37 m²
Barrierefreie-Zimmer
Zimmergröße: ca. 31,18 m²
Allgemeinflächen: 23,16 m²
Jede Einheit wird als separates Sondereigentum veräußert und ist Bestandteil der Gesamtanlage. Der Hotelbetrieb erfolgt einheitlich über den Betreiber. Die Eigentümergemeinschaft tritt nach außen nicht in Erscheinung und hat keinen operativen Einfluss auf den laufenden Betrieb.
Detaillierte Grundrisse, Aufteilungspläne sowie die vollständige Baubeschreibung stellen wir interessierten Investoren im Rahmen des Exposés zur Verfügung. Gerne erläutern wir Ihnen die Struktur der Einheiten auch persönlich.
Bei dem Projekt handelt es sich um ein Neubau-Hotel mit insgesamt 89 voll ausgestatteten Einheiten. Die Hotelzimmer sind einzeln erwerbbar, mit Kaufpreisen ab 172.000 Euro. Die Übergabe erfolgt schlüsselfertig inklusive vollständiger Möblierung. Ein langfristiger Pachtvertrag sorgt für planbare und stabile Einnahmen. Der Hotelbetrieb erfolgt professionell im Full-Service-Modell, sodass für den Käufer kein Vermietungs- oder Verwaltungsaufwand entsteht. Die Finanzierung wird durch ausgewählte Banken begleitet, die das Objekt, die Projektstruktur und die wirtschaftlichen Rahmenbedingungen detailliert kennen.
Die Mietrendite ist mit 4 Prozent pro Jahr vertraglich zugesichert. Durch das flächenoptimierte Hotelkonzept und die langfristig gesicherte Ertragsstruktur bietet das Objekt eine hohe Wirtschaftlichkeit bei gleichzeitig geringem Verwaltungsaufwand.
Das Gebäude wird in energieeffizienter Bauweise nach dem Effizienzhaus-Standard 40 NH errichtet. Der sehr niedrige Energiebedarf wirkt sich positiv auf die laufenden Betriebskosten aus und unterstützt eine gute ESG-Bewertung. Die nachhaltige Holzmodul-Hybridbauweise verbindet einen hohen Qualitätsstandard mit Zukunftssicherheit und langfristiger Wertstabilität.
Die Hotelzimmer sind vollständig möbliert und hochwertig ausgestattet. Dazu gehören komfortable Betten, funktionale Einbaumöbel, Stauraumlösungen, Schreibtisch- und Sitzbereiche, Flachbild-TVs sowie moderne Medienanschlüsse. Die Badezimmer verfügen über zeitgemäße Sanitärausstattung mit Dusche, WC und Waschbecken. Ein durchdachtes Beleuchtungskonzept sowie moderne Belüftungs- bzw. Klimatisierungslösungen sorgen für zusätzlichen Komfort.
Die Zimmergrößen sind effizient und wirtschaftlich geplant. Standard-Hotelzimmer verfügen über eine Fläche von etwa 14,53 m², Komfort-Zimmer über rund 20,69 m². Großzügige sowie barrierefreie Einheiten bieten ca. 31,18 m² und verfügen über erweiterte Bewegungsflächen und Sonderausstattung.
Das Gebäude bietet eine repräsentative Lobby mit Lounge-Bereich sowie eine Gastronomieeinheit im Erdgeschoss mit angeschlossener Außenterrasse. Gepflegte Verkehrs- und Erschließungsflächen, Aufzüge in alle Etagen sowie barrierefreie Zugänge zu den öffentlichen Bereichen runden das Nutzungskonzept ab. Im Außenbereich stehen zehn PKW-Stellplätze zur Verfügung, davon ein barrierefreier Stellplatz, sowie Fahrradstellplätze, teilweise überdacht. Begrünte Dach- und Außenflächen unterstreichen den nachhaltigen Anspruch des Projekts.
Das Hotelprojekt "The Reed" entsteht in Konstanz-Wollmatingen und umfasst 89 moderne Hotelzimmer, die als langfristige Kapitalanlage mit festem Pachtvertrag (20 Jahre + Verlängerungsoption) angeboten werden. (inkl. Indexanpassung!)
Der Hotelbetrieb erfolgt durch Zleep Hotels, eine skandinavische Hotelmarke und Teil der H World International (ehemals Steigenberger Gruppe). Die Marke ist europaweit aktiv und auf effiziente, moderne Stadthotels spezialisiert. Für Investoren bedeutet dies einen professionellen Betrieb mit klaren Standards und einer langfristigen strategischen Ausrichtung.
Der Betreiber übernimmt den vollständigen Hotelbetrieb, einschließlich Vermietung, Personal, Instandhaltung der Gemeinschaftsflächen sowie die laufende Organisation des Hauses. Auch die Möblierung und der Austausch von Ausstattungselementen im Rahmen des Betreiberkonzepts liegen in der Verantwortung des Hotelbetreibers. Für Anleger entsteht dadurch ein Investment ohne operativen Aufwand.
Für das Hotelprojekt besteht ein langfristiger Pachtvertrag mit einer festen Laufzeit von 20 Jahren sowie zwei Verlängerungsoptionen um jeweils fünf Jahre. Die Miete wird unabhängig von der tatsächlichen Auslastung des einzelnen Zimmers gezahlt und bietet damit eine hohe Planbarkeit der Einnahmen. Zusätzlich ist eine Indexierung der Pacht vorgesehen, um einen teilweisen Inflationsschutz zu gewährleisten.
Übersicht der Zimmertypen:
Standard-Hotelzimmer
Zimmergröße: ca. 14,53 m²
Allgemeinflächen: 10,97 m²
Komfort-Zimmer
Zimmergröße: ca. 20,69 m²
Allgemeinflächen: 15,37 m²
Barrierefreie-Zimmer
Zimmergröße: ca. 31,18 m²
Allgemeinflächen: 23,16 m²
Jede Einheit wird als separates Sondereigentum veräußert und ist Bestandteil der Gesamtanlage. Der Hotelbetrieb erfolgt einheitlich über den Betreiber. Die Eigentümergemeinschaft tritt nach außen nicht in Erscheinung und hat keinen operativen Einfluss auf den laufenden Betrieb.
Detaillierte Grundrisse, Aufteilungspläne sowie die vollständige Baubeschreibung stellen wir interessierten Investoren im Rahmen des Exposés zur Verfügung. Gerne erläutern wir Ihnen die Struktur der Einheiten auch persönlich.
Bei dem Projekt handelt es sich um ein Neubau-Hotel mit insgesamt 89 voll ausgestatteten Einheiten. Die Hotelzimmer sind einzeln erwerbbar, mit Kaufpreisen ab 172.000 Euro. Die Übergabe erfolgt schlüsselfertig inklusive vollständiger Möblierung. Ein langfristiger Pachtvertrag sorgt für planbare und stabile Einnahmen. Der Hotelbetrieb erfolgt professionell im Full-Service-Modell, sodass für den Käufer kein Vermietungs- oder Verwaltungsaufwand entsteht. Die Finanzierung wird durch ausgewählte Banken begleitet, die das Objekt, die Projektstruktur und die wirtschaftlichen Rahmenbedingungen detailliert kennen.
Die Mietrendite ist mit 4 Prozent pro Jahr vertraglich zugesichert. Durch das flächenoptimierte Hotelkonzept und die langfristig gesicherte Ertragsstruktur bietet das Objekt eine hohe Wirtschaftlichkeit bei gleichzeitig geringem Verwaltungsaufwand.
Das Gebäude wird in energieeffizienter Bauweise nach dem Effizienzhaus-Standard 40 NH errichtet. Der sehr niedrige Energiebedarf wirkt sich positiv auf die laufenden Betriebskosten aus und unterstützt eine gute ESG-Bewertung. Die nachhaltige Holzmodul-Hybridbauweise verbindet einen hohen Qualitätsstandard mit Zukunftssicherheit und langfristiger Wertstabilität.
Die Hotelzimmer sind vollständig möbliert und hochwertig ausgestattet. Dazu gehören komfortable Betten, funktionale Einbaumöbel, Stauraumlösungen, Schreibtisch- und Sitzbereiche, Flachbild-TVs sowie moderne Medienanschlüsse. Die Badezimmer verfügen über zeitgemäße Sanitärausstattung mit Dusche, WC und Waschbecken. Ein durchdachtes Beleuchtungskonzept sowie moderne Belüftungs- bzw. Klimatisierungslösungen sorgen für zusätzlichen Komfort.
Die Zimmergrößen sind effizient und wirtschaftlich geplant. Standard-Hotelzimmer verfügen über eine Fläche von etwa 14,53 m², Komfort-Zimmer über rund 20,69 m². Großzügige sowie barrierefreie Einheiten bieten ca. 31,18 m² und verfügen über erweiterte Bewegungsflächen und Sonderausstattung.
Das Gebäude bietet eine repräsentative Lobby mit Lounge-Bereich sowie eine Gastronomieeinheit im Erdgeschoss mit angeschlossener Außenterrasse. Gepflegte Verkehrs- und Erschließungsflächen, Aufzüge in alle Etagen sowie barrierefreie Zugänge zu den öffentlichen Bereichen runden das Nutzungskonzept ab. Im Außenbereich stehen zehn PKW-Stellplätze zur Verfügung, davon ein barrierefreier Stellplatz, sowie Fahrradstellplätze, teilweise überdacht. Begrünte Dach- und Außenflächen unterstreichen den nachhaltigen Anspruch des Projekts.
Merkmale
- 634 m² Grundstück
- Personenaufzug
- 10 Stellplätze: 10 Außen-Stellplätze
- Balkon
- Barrierefrei
- Badezimmer: Bad mit Dusche, Bad mit Fenster
- Bodenbelag: Fliesen
Ausstattung & Investment-Highlights
* Objekt & Investment:
. Neubau-Hotel mit 89 voll ausgestatteten Einheiten
. Hotelzimmer einzeln erwerbbar
. Kaufpreise ab 172.000 €
. Langfristiger Pachtvertrag mit planbaren, stabilen Einnahmen
. Professioneller Hotelbetrieb mit Full-Service-Konzept - kein Vermietungs- oder Verwaltungsaufwand
. Finanzierung über ausgewählte Banken, die Objekt, Projektstruktur und wirtschaftliche Rahmenbedingungen detailliert kennen
* Rendite & Wirtschaftlichkeit:
. Garantierte Mietrendite von 4 % p. a.
. Flächenoptimiertes Hotelkonzept mit hoher Wirtschaftlichkeit
. Geringer Verwaltungsaufwand und langfristig gesicherte Ertragsstruktur
* Nachhaltigkeit & Energie:
. Energieeffiziente Bauweise nach Effizienzhaus-Standard 40 NH
. Sehr niedriger Energiebedarf ? reduzierte Betriebskosten und positive ESG-Bewertung
. Nachhaltige Holzmodul-Hybridbauweise mit hohem Qualitätsstandard
. Zukunftssicheres Gebäude- und Energiekonzept
* Förderung & steuerliche Aspekte:
. Grundsätzlich förderfähig im Rahmen aktueller KfW-Neubauprogramme (z. B. klimafreundlicher Neubau), abhängig von individueller Antragstellung
. Zinsvergünstigte Darlehen möglich; Vorteile können sich im Kaufpreis widerspiegeln
. Reguläre Gebäude-AfA für Neubauten (derzeit 3 % p. a.)
. Bei Erfüllung zusätzlicher Nachhaltigkeitskriterien (z. B. QNG) ggf. Sonder-AfA nach § 7b EStG (bis zu 5 % p. a. über 4 Jahre)
. Alternativ ggf. degressive AfA nutzbar
. Besonders attraktiv für Investoren mit hohem persönlichem Steuersatz
* Zimmerausstattung:
. Voll möblierte Hotelzimmer / Apartments
. Hochwertige Betten mit Matratze und Lattenrost
. Funktionale Einbaumöbel und Stauraumlösungen
. Schreibtisch- und Sitzbereich
. Flachbild-TV und moderne Medienanschlüsse
. Zeitgemäß ausgestattete Badezimmer mit Dusche, WC und Waschbecken
. Hochwertige Sanitärausstattung
. Durchdachtes Beleuchtungskonzept
. Moderne Belüftungs- bzw. Klimatisierungslösung
* Zimmer- und Nutzflächen:
. Standard-Hotelzimmer: ca. 14,53 m²
. Komfort-Hotelzimmer: ca. 20,69 m²
. Großzügige / barrierefreie Einheiten: ca. 31,18 m²
. Effiziente, funktionale Grundrisse mit optimaler Flächennutzung
. Barrierefreie Zimmer mit erweiterten Bewegungsflächen und Sonderausstattung
* Gebäude & Gemeinschaftsflächen:
. Repräsentative Lobby mit Lounge-Bereich
. Gastronomieeinheit im Erdgeschoss mit angeschlossener Außenterrasse
. Gepflegte Verkehrs- und Erschließungsflächen
. Aufzug in alle Etagen
. Barrierefreie Erschließung der öffentlichen Bereiche
* Außenanlagen & Lage:
. 10 PKW-Außenstellplätze, davon 1 barrierefrei
. Fahrradstellplätze, teilweise überdacht
. Begrünte Dach- und Außenflächen
. Attraktiver Hotelstandort Konstanz mit hoher, ganzjähriger Nachfrage
. Sehr gute Verkehrsanbindung, insbesondere Bahnhofsnähe
* Objekt & Investment:
. Neubau-Hotel mit 89 voll ausgestatteten Einheiten
. Hotelzimmer einzeln erwerbbar
. Kaufpreise ab 172.000 €
. Langfristiger Pachtvertrag mit planbaren, stabilen Einnahmen
. Professioneller Hotelbetrieb mit Full-Service-Konzept - kein Vermietungs- oder Verwaltungsaufwand
. Finanzierung über ausgewählte Banken, die Objekt, Projektstruktur und wirtschaftliche Rahmenbedingungen detailliert kennen
* Rendite & Wirtschaftlichkeit:
. Garantierte Mietrendite von 4 % p. a.
. Flächenoptimiertes Hotelkonzept mit hoher Wirtschaftlichkeit
. Geringer Verwaltungsaufwand und langfristig gesicherte Ertragsstruktur
* Nachhaltigkeit & Energie:
. Energieeffiziente Bauweise nach Effizienzhaus-Standard 40 NH
. Sehr niedriger Energiebedarf ? reduzierte Betriebskosten und positive ESG-Bewertung
. Nachhaltige Holzmodul-Hybridbauweise mit hohem Qualitätsstandard
. Zukunftssicheres Gebäude- und Energiekonzept
* Förderung & steuerliche Aspekte:
. Grundsätzlich förderfähig im Rahmen aktueller KfW-Neubauprogramme (z. B. klimafreundlicher Neubau), abhängig von individueller Antragstellung
. Zinsvergünstigte Darlehen möglich; Vorteile können sich im Kaufpreis widerspiegeln
. Reguläre Gebäude-AfA für Neubauten (derzeit 3 % p. a.)
. Bei Erfüllung zusätzlicher Nachhaltigkeitskriterien (z. B. QNG) ggf. Sonder-AfA nach § 7b EStG (bis zu 5 % p. a. über 4 Jahre)
. Alternativ ggf. degressive AfA nutzbar
. Besonders attraktiv für Investoren mit hohem persönlichem Steuersatz
* Zimmerausstattung:
. Voll möblierte Hotelzimmer / Apartments
. Hochwertige Betten mit Matratze und Lattenrost
. Funktionale Einbaumöbel und Stauraumlösungen
. Schreibtisch- und Sitzbereich
. Flachbild-TV und moderne Medienanschlüsse
. Zeitgemäß ausgestattete Badezimmer mit Dusche, WC und Waschbecken
. Hochwertige Sanitärausstattung
. Durchdachtes Beleuchtungskonzept
. Moderne Belüftungs- bzw. Klimatisierungslösung
* Zimmer- und Nutzflächen:
. Standard-Hotelzimmer: ca. 14,53 m²
. Komfort-Hotelzimmer: ca. 20,69 m²
. Großzügige / barrierefreie Einheiten: ca. 31,18 m²
. Effiziente, funktionale Grundrisse mit optimaler Flächennutzung
. Barrierefreie Zimmer mit erweiterten Bewegungsflächen und Sonderausstattung
* Gebäude & Gemeinschaftsflächen:
. Repräsentative Lobby mit Lounge-Bereich
. Gastronomieeinheit im Erdgeschoss mit angeschlossener Außenterrasse
. Gepflegte Verkehrs- und Erschließungsflächen
. Aufzug in alle Etagen
. Barrierefreie Erschließung der öffentlichen Bereiche
* Außenanlagen & Lage:
. 10 PKW-Außenstellplätze, davon 1 barrierefrei
. Fahrradstellplätze, teilweise überdacht
. Begrünte Dach- und Außenflächen
. Attraktiver Hotelstandort Konstanz mit hoher, ganzjähriger Nachfrage
. Sehr gute Verkehrsanbindung, insbesondere Bahnhofsnähe
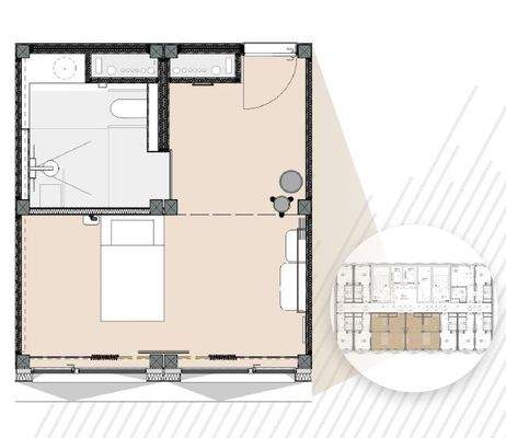
Grundrisse
Grundrisse
1 / 3
Realisiere Dein Projekt
Bausubstanz und Energie
Der Anbieter hat keine Informationen zum Energieverbrauch bereit gestellt.
- Baujahr2027
- Zustand der ImmobilieErstbezug
- EnergieträgerLuft-/Wasser-Wärmepumpe
Preisdetails
Kaufpreis
172000 €172.000 €
11.837,58 €/m²
Provision für Käufer
0%
Gerne sind wir für weitere Fragen und Informationen unter Tel.: 09441 - 2089160 erreichbar.
Sind auch Sie an einer diskreten Vermarktung interessiert? Dann kontaktieren Sie uns gerne. Weitere Informationen siehe Provisionshinweis.
Gerne sind wir für weitere Fragen und Informationen unter Tel.: 09441 - 2089160 erreichbar.
Sind auch Sie an einer diskreten Vermarktung interessiert? Dann kontaktieren Sie uns gerne. Weitere Informationen siehe Provisionshinweis.
Weitere Preisinformationen
10 Stellplätze
Geschätzte Gesamtkosten
172.000 €1
Kaufpreis
172.000 €
1Der angezeigte Wert ist eine automatisch berechnete Schätzung von immowelt.
Lage

Fürstenberg, Konstanz (78467)
Der Anbieter hat die genaue Adresse nicht freigegeben
Konstanz liegt in einzigartiger Lage direkt am Bodensee und grenzt unmittelbar an die Schweiz. Diese besondere Kombination aus See, Natur und internationalem Flair macht Konstanz zu einer der begehrtesten Wohnlagen in Süddeutschland. Die historische Altstadt, die malerische Uferpromenade und die Nähe zu den Alpen schaffen eine außergewöhnlich hohe Lebensqualität - ideal sowohl für Eigennutzer als auch für Kapitalanleger im Immobilienbereich.
Konstanz verfügt über eine hervorragend ausgebaute Infrastruktur. Der Bahnhof Konstanz bietet direkte Zugverbindungen in Richtung Stuttgart, Zürich und München. Der nahegelegene Flughafen Zürich ist in etwa einer Stunde erreichbar und ermöglicht eine optimale internationale Anbindung. Ergänzt wird dies durch ein gut ausgebautes Busnetz sowie zahlreiche Fährverbindungen über den Bodensee. Radfahrer profitieren von einem der beliebtesten Radwegenetze Europas, während Autofahrer über die B33 schnell an das überregionale Straßennetz angebunden sind.
Die Innenstadt von Konstanz bietet vielfältige Einkaufsmöglichkeiten: von großen Einkaufszentren über bekannte Marken bis hin zu individuellen Boutiquen und Wochenmärkten. Supermärkte, Bäckereien, Apotheken und alle Einrichtungen des täglichen Bedarfs sind flächendeckend vorhanden. Die Nähe zur Schweiz macht Konstanz zudem zu einem beliebten Einkaufsziel für internationale Besucher - ein klarer Vorteil für die lokale Wirtschaft und den Immobilienstandort.
Gastronomie, Kultur und Sehenswürdigkeiten
Zahlreiche Cafés, Restaurants und Lokale prägen das lebendige Stadtbild. Ob gehobene Küche, regionale Spezialitäten oder gemütliche Seeterrassen - Konstanz bietet kulinarische Vielfalt direkt am Wasser. Zu den bekanntesten Sehenswürdigkeiten zählen die historische Altstadt, das Konzilgebäude am Hafen sowie die weltberühmte Insel Mainau, die jährlich hunderttausende Urlauber anzieht.
Die Lage am Bodensee eröffnet ein breites Spektrum an Freizeit- und Ausflugsmöglichkeiten: Segeln, Schwimmen, Stand-up-Paddling oder entspannte Spaziergänge entlang der Uferpromenade. Beliebte Ausflugsziele wie die Bodenseeregion, die Alpen oder charmante Nachbarstädte in Deutschland, Österreich und der Schweiz sind schnell erreichbar. Konstanz ist zudem ein attraktiver Standort für Urlauber, was sich in einer hohen Nachfrage nach Hotelübernachtungen und Ferienunterkünften widerspiegelt.
Moderne Wellness- und Spaangebote, Thermen in der Bodenseeregion sowie ein hochwertiges medizinisches Angebot unterstreichen den hohen Wohn- und Erholungswert. Die Kombination aus gesunder Seeluft, Natur und urbaner Infrastruktur macht Konstanz zu einem gefragten Standort für alle Generationen.
Eine Immobilie in Konstanz am Bodensee vereint erstklassige Lage, hervorragende Infrastruktur, hohe Lebensqualität und nachhaltige Wertstabilität. Ob als Wohnimmobilie, Ferienimmobilie oder Kapitalanlage - Konstanz zählt zu den attraktivsten Immobilienstandorten am Bodensee und überzeugt durch seine einzigartige Mischung aus Natur, Stadtleben und internationaler Ausstrahlung.
Konstanz verfügt über eine hervorragend ausgebaute Infrastruktur. Der Bahnhof Konstanz bietet direkte Zugverbindungen in Richtung Stuttgart, Zürich und München. Der nahegelegene Flughafen Zürich ist in etwa einer Stunde erreichbar und ermöglicht eine optimale internationale Anbindung. Ergänzt wird dies durch ein gut ausgebautes Busnetz sowie zahlreiche Fährverbindungen über den Bodensee. Radfahrer profitieren von einem der beliebtesten Radwegenetze Europas, während Autofahrer über die B33 schnell an das überregionale Straßennetz angebunden sind.
Die Innenstadt von Konstanz bietet vielfältige Einkaufsmöglichkeiten: von großen Einkaufszentren über bekannte Marken bis hin zu individuellen Boutiquen und Wochenmärkten. Supermärkte, Bäckereien, Apotheken und alle Einrichtungen des täglichen Bedarfs sind flächendeckend vorhanden. Die Nähe zur Schweiz macht Konstanz zudem zu einem beliebten Einkaufsziel für internationale Besucher - ein klarer Vorteil für die lokale Wirtschaft und den Immobilienstandort.
Gastronomie, Kultur und Sehenswürdigkeiten
Zahlreiche Cafés, Restaurants und Lokale prägen das lebendige Stadtbild. Ob gehobene Küche, regionale Spezialitäten oder gemütliche Seeterrassen - Konstanz bietet kulinarische Vielfalt direkt am Wasser. Zu den bekanntesten Sehenswürdigkeiten zählen die historische Altstadt, das Konzilgebäude am Hafen sowie die weltberühmte Insel Mainau, die jährlich hunderttausende Urlauber anzieht.
Die Lage am Bodensee eröffnet ein breites Spektrum an Freizeit- und Ausflugsmöglichkeiten: Segeln, Schwimmen, Stand-up-Paddling oder entspannte Spaziergänge entlang der Uferpromenade. Beliebte Ausflugsziele wie die Bodenseeregion, die Alpen oder charmante Nachbarstädte in Deutschland, Österreich und der Schweiz sind schnell erreichbar. Konstanz ist zudem ein attraktiver Standort für Urlauber, was sich in einer hohen Nachfrage nach Hotelübernachtungen und Ferienunterkünften widerspiegelt.
Moderne Wellness- und Spaangebote, Thermen in der Bodenseeregion sowie ein hochwertiges medizinisches Angebot unterstreichen den hohen Wohn- und Erholungswert. Die Kombination aus gesunder Seeluft, Natur und urbaner Infrastruktur macht Konstanz zu einem gefragten Standort für alle Generationen.
Eine Immobilie in Konstanz am Bodensee vereint erstklassige Lage, hervorragende Infrastruktur, hohe Lebensqualität und nachhaltige Wertstabilität. Ob als Wohnimmobilie, Ferienimmobilie oder Kapitalanlage - Konstanz zählt zu den attraktivsten Immobilienstandorten am Bodensee und überzeugt durch seine einzigartige Mischung aus Natur, Stadtleben und internationaler Ausstrahlung.
Weitere Informationen
Provisionshinweis
0%
Gerne sind wir für weitere Fragen und Informationen unter Tel.: 09441 - 2089160 erreichbar.
Sind auch Sie an einer diskreten Vermarktung interessiert? Dann kontaktieren Sie uns gerne.
Bei Kauf verpflichtet sich der Käufer (Käuferprovision) an die Aurentum GmbH, eine Maklerprovision in der angegebenen Höhe nach notariellem Kaufvertrag zu leisten. Durch Ihre Objektanfrage bestätigen Sie die Vereinbarung und Anerkennung dieser Maklercourtage. Alle Angaben stammen vom Eigentümer der Makler übernimmt hierfür keine Haftung.
Anfragen über die Immobilienportale werden nur mit vollständiger Adresse und Telefonnummer bearbeitet. Aufsichtsbehörde: IHK für München und Oberbayern, Max-Joseph-Str. 2, 80333 München. Sonstiges Gerne sind wir für weitere Fragen und Informationen unter Tel.: 09441 - 2089160 erreichbar.
Bei Kauf verpflichtet sich der Käufer an die Aurentum GmbH, eine Maklerprovision in der angegebenen Höhe nach notariellem Kaufvertrag zu leisten. Durch Ihre Objektanfrage bestätigen Sie die Vereinbarung und Anerkennung dieser Maklercourtage. Alle Angaben stammen vom Eigentümer, der Makler übernimmt hierfür keine Haftung.
Anfragen über die Immobilienportale werden nur mit vollständiger Adresse und Telefonnummer bearbeitet. Aufsichtsbehörde: IHK für München und Oberbayern, Max-Joseph-Str. 2, 80333 München.
Bildrechte und Darstellungen:
Die in diesem Dokument bzw. auf dieser Website gezeigten Visualisierungen wurden teilweise mit Hilfe künstlicher Intelligenz erzeugt. Sie dienen der Illustration und ersetzen keine reale Besichtigung oder verbindliche Bau- und Ausstattungsbeschreibung. Für die Richtigkeit und Vollständigkeit der gezeigten Darstellungen wird keine Haftung übernommen. Energiepass Energieausweis wird bei Besichtigung vorgelegt. Stichworte Stellplatz vorhanden, Gesamtfläche: 25,50 m², vermietbare Fläche: 14,53 m², Anzahl Balkone: 1, Anzahl der Wohneinheiten: 89, Anzahl der Gewerbeeinheiten: 1, Bundesland: Baden-Württemberg, 9 Etagen, Distanz zum Flughafen: 77.7, Distanz zum Hauptbahnhof: 0.52, Distanz zum Bus: 0.06
Gerne sind wir für weitere Fragen und Informationen unter Tel.: 09441 - 2089160 erreichbar.
Sind auch Sie an einer diskreten Vermarktung interessiert? Dann kontaktieren Sie uns gerne.
Bei Kauf verpflichtet sich der Käufer (Käuferprovision) an die Aurentum GmbH, eine Maklerprovision in der angegebenen Höhe nach notariellem Kaufvertrag zu leisten. Durch Ihre Objektanfrage bestätigen Sie die Vereinbarung und Anerkennung dieser Maklercourtage. Alle Angaben stammen vom Eigentümer der Makler übernimmt hierfür keine Haftung.
Anfragen über die Immobilienportale werden nur mit vollständiger Adresse und Telefonnummer bearbeitet. Aufsichtsbehörde: IHK für München und Oberbayern, Max-Joseph-Str. 2, 80333 München. Sonstiges Gerne sind wir für weitere Fragen und Informationen unter Tel.: 09441 - 2089160 erreichbar.
Bei Kauf verpflichtet sich der Käufer an die Aurentum GmbH, eine Maklerprovision in der angegebenen Höhe nach notariellem Kaufvertrag zu leisten. Durch Ihre Objektanfrage bestätigen Sie die Vereinbarung und Anerkennung dieser Maklercourtage. Alle Angaben stammen vom Eigentümer, der Makler übernimmt hierfür keine Haftung.
Anfragen über die Immobilienportale werden nur mit vollständiger Adresse und Telefonnummer bearbeitet. Aufsichtsbehörde: IHK für München und Oberbayern, Max-Joseph-Str. 2, 80333 München.
Bildrechte und Darstellungen:
Die in diesem Dokument bzw. auf dieser Website gezeigten Visualisierungen wurden teilweise mit Hilfe künstlicher Intelligenz erzeugt. Sie dienen der Illustration und ersetzen keine reale Besichtigung oder verbindliche Bau- und Ausstattungsbeschreibung. Für die Richtigkeit und Vollständigkeit der gezeigten Darstellungen wird keine Haftung übernommen. Energiepass Energieausweis wird bei Besichtigung vorgelegt. Stichworte Stellplatz vorhanden, Gesamtfläche: 25,50 m², vermietbare Fläche: 14,53 m², Anzahl Balkone: 1, Anzahl der Wohneinheiten: 89, Anzahl der Gewerbeeinheiten: 1, Bundesland: Baden-Württemberg, 9 Etagen, Distanz zum Flughafen: 77.7, Distanz zum Hauptbahnhof: 0.52, Distanz zum Bus: 0.06
Weitere Services
Lust auf eine Besichtigung?
Eine Frage zur Immobilie?
Über den Anbieter
Aurentum GmbHMaklerbüro
Mitterfeckinger Str. 2, 93342 Saal a. d. Donau
Partnerschaft
Frau Corinna GeißlerDein Kontakt
Online-ID: 2mqal5w
Referenznummer: Objekt - 1871

Aurentum GmbH
4,8/5Bewertung: 4,8 von 5 Sternen
Wie zufrieden bist du mit dieser Seite (nicht mit der Immobilie selbst)?