
BWH Bauwerk Hamburg Kapital GmbH
Herr Rüdiger Schmitt
040 ···
Nr. anzeigenPreise & Kosten
Provision für Käufer
provisionsfrei
Lage
Mit Lage im lebendigen Eimsbüttel liegt die Weidenallee mittendrin und doch im Grünen. Der Stadtteil im Westen Hamburgs ist bekannt für seine charmanten Altbauwohnungen, grünen Parks und lebhaften Straßen mit Cafés und Restaurants. Die Weidenallee liegt an der Grenze zur Sternschanze und bietet somit in unmittelbarer Umgebung...
Die Ladenfläche
Kategorie
Verkaufsfläche
Baujahr
2006/2007
Derzeitige Nutzung
vermietet
Energie & Heizung
Warum sehe ich diese Anzeige? – Du siehst diese Anzeige basierend auf Ihrer Navigation auf unserer Website und den Suchkriterien, die du verwendet hast.
Wärme
Strom
Energieausweistyp
Verbrauchsausweis
Gebäudetyp
Nicht-Wohngebäude
Baujahr laut Energieausweis
2006
Wesentliche Energieträger
Erdgas H
Gültigkeit
07.11.2024 bis 06.11.2034
Endenergieverbrauch (Wärme)
55,40 kWh/(m²·a) - Warmwasser enthalten
Endenergieverbrauch (Strom)
18,60 kWh/(m²·a) - Warmwasser enthalten
Weitere Energiedaten
Heizungsart
Zentralheizung
Details
Objektbeschreibung
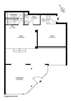
Das Objekt wurde 2006/2007 mit 2 Gewerbe- sowie 11 Wohneinheiten errichtet. Die Einheiten erstrecken sich auf insgesamt 4 Geschossen. Im Erdgeschoss befinden sich die beiden zum Verkauf stehenden Gewerbeeinheiten. Diese sind jeweils mit einer großen Fensterfront ausgestattet.
Das Gebäude wird über eine Brennwertheizung...
Weitere Informationen
Gewerbeeinheit
Die Gewerbeeinheit liegt im Erdgeschoss links und ist aktuell an einen Optiker vermietet. Sie liegt im Erdgeschoss verfügt über eine großzügige Ladenfläche plus Erker mit großer Fensterfront. Weiterhin gibt es ein WC. Diese können entweder als Mitarbeiter- und Kunden WC genutzt werden. Außerdem verfügt die...
Dokumente
Anbieter der Immobilie

BWH Bauwerk Hamburg Kapital GmbH
Ehrenbergstr. 54, 22767 Hamburg
Online-ID: 2mqbl5k
Referenznummer: WA54 GE01_28
Finde Angebote wie dieses
Hier geht es zu unserem Impressum, den Allgemeinen Geschäftsbedingungen, den Hinweisen zum Datenschutz und nutzungsbasierter Online-Werbung.