

Burow & Lutz Immobilien
Herr Dennis Burow
051 ···
Nr. anzeigenPreise & Kosten
Provision für Käufer
5,95 % v. Kaufpreis (inkl. ges. MwSt.)
5,95% Käuferprovision inkl. MwSt., verdient und fällig mit Beurkundung des notariellen Kaufvertrags.
Lage
Die Residenzstadt Celle, mit etwa 73.000 Einwohnern, liegt im südlichen Bereich der Lüneburger Heide, mit mittelbarer Nähe zu den Städten Hannover und Braunschweig. Ein geschlossenes Schulsystem und eine gute verkehrstechnische Anbindung an die Großstädte Norddeutschlands runden die Vorteile der 700 Jahre alten Residenzstadt...
Die Industriefläche
Baujahr
2019
Bezug
sofort
Energie & Heizung
Warum sehe ich diese Anzeige? – Du siehst diese Anzeige basierend auf Ihrer Navigation auf unserer Website und den Suchkriterien, die du verwendet hast.
Wärme
Energieausweistyp
Bedarfsausweis
Gebäudetyp
Nicht-Wohngebäude
Wesentliche Energieträger
Strom
Gültigkeit
19.03.2020 bis 19.03.2030
Endenergiebedarf (Wärme)
84,20 kWh/(m²·a)
Weitere Energiedaten
Energieträger
Elektro
Heizungsart
Zentralheizung
Details
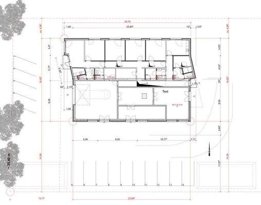
Objektbeschreibung
Dieses Gewerbeobjekt wurde 2020 erbaut und bietet viele Nutzungsmöglichkeiten.
Die Immobilie ist ab dem 01.04.2025 unvermietet und ist ab diesem Zeitpunkt sofort beziehbar.
Auf einem 2.500 m² großen Grundstück wurde eine 450 m² Gewerbeeinheit mit möglicher Produktionshalle, Lagerräumen und einem Bürotrakt...
Ausstattung
Die Immobilie ist ab dem 01.04.2025 unvermietet und ist ab diesem Zeitpunkt sofort beziehbar.
Bürotrakt:
- 225 m²
- 4 Büroräume
- 2 Vollbäder
- 2 Kunden-WCs
- Empfangsbereich
- Serverraum
- Pausenraum mit Küchenzeile
- Teeküche
- Smarte Lichtsteuerung
- Teppichboden
- Fenster 3-fach...
Preisinformation
10 Stellplätze
Weitere Informationen
Sonstiges
Haben Sie ein Haus oder eine Wohnung zu verkaufen? Wir beraten Sie gern. Besuchen Sie uns in unserem Immobilienbüro in der Tilsiter Straße 16 in 30657 Hannover.
Sie erreichen uns außerdem per Mail unter info@burow-lutz.de oder per Telefon unter 0511 554 774 80.
Stichworte
Stellplatz vorhanden...
Anbieter der Immobilie
Burow & Lutz Immobilien
Podbielskistr. 282, 30655 Hannover

Online-ID: 2mqbs5j
Referenznummer: BL-860
Finde Angebote wie dieses
Hier geht es zu unserem Impressum, den Allgemeinen Geschäftsbedingungen, den Hinweisen zum Datenschutz und nutzungsbasierter Online-Werbung.