
Crozilla.com
Opereta
+38 ···
Nr. anzeigenPreise & Kosten
Provision für Käufer
Bitte beachte, das Angebot kann bei Vertragsabschluss die Zahlung einer Provision beinhalten. Weitere Informationen erhältst Du vom Anbieter.
Die Wohnung
Wohnungslage
1. Geschoss
Wohnanlage
Details
Objektbeschreibung
Stan, NOVOGRADNJA, prodaja, Crnomerec, Kuniscak, 3sob, 57,38m2
Zgrada od 38 stanova, useljenje proljece 2027.
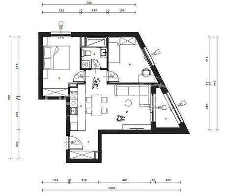
Sastoji se od ulaznog hodnika, kuhinje s blagovaonicom i dnevnog boravka, dvije spavace sobe, kupaonice i loggie. Uz stan je potrebno kupiti garazno mjesto i spremiste.
Oprema: alu-stolarijom s...
Weitere Informationen
Stichworte
Anzahl der Schlafzimmer: 2, Anzahl der Badezimmer: 1
Anbieter der Immobilie
Crozilla.com
Nova cesta 60, 10000 ZAGREB
Online-ID: 2mqc556
Referenznummer: 18079172_2
Finde Angebote wie dieses
Hier geht es zu unserem Impressum, den Allgemeinen Geschäftsbedingungen, den Hinweisen zum Datenschutz und nutzungsbasierter Online-Werbung.