
Altmann & Reiner Immobilien GbR
Herr Sepp Sauer
017 ···
Nr. anzeigenPreise & Kosten
Provision für Käufer
provisionsfrei
Lage
- angenehme, naturnahe Wohngegend.
- gut ausgebaute Infrastruktur.
- große Wohn- und Freizeitqualität.
- solides Preisniveau am Ort.
- der Markt als zuverlässiger Partner der Wirtschaft
Das Haus
Kategorie
Mehrfamilienhaus
Baujahr
2026
Bezug
01.12.2027
Energie & Heizung
Warum sehe ich diese Anzeige? – Du siehst diese Anzeige basierend auf Ihrer Navigation auf unserer Website und den Suchkriterien, die du verwendet hast.
Energieausweis: für diesen Gebäudetyp nicht notwendig
Weitere Energiedaten
Haustyp
KfW 55
Heizungsart
Fußbodenheizung, Luft-/Wasser-Wärmepumpe
Details
Objektbeschreibung
Kurzübersicht: Baujahr: 2026/2027, Wohnfläche: 1.819,24 m², Grundstück: 2.300 m², Heizung: Luft-Wasser-Wärmepumpe, Energieausweis: nicht erforderlich.
Aufteilung:
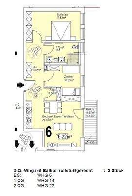
EG: 8 Wohneinheiten mit 515,03 m² Wohnfläche.
1 OG: 8 Wohneinheiten mit 515,03 m² Wohnfläche.
2 OG: 8 Wohneinheiten mit 515,03 m² Wohnfläche.
DG...
Weitere Informationen
Sonstiges
Achtung! Aus Datenschutzgründen dürfen wir nur Unterlagen versenden wenn uns die komplette Anschrift und Telefonnummer eines Interessenten vorliegt.
Bitte bedenken Sie das bei Ihrer Anfrage und Sie erhalten die gewünschten Informationen.
Vielen Dank.
Heizmethode:
Individuell
Anbieter der Immobilie
Altmann & Reiner Immobilien GbR
Dr.-Muggenthaler-Straße 3, 93413 Cham
Online-ID: 2mqch5d
Finde Angebote wie dieses
Hier geht es zu unserem Impressum, den Allgemeinen Geschäftsbedingungen, den Hinweisen zum Datenschutz und nutzungsbasierter Online-Werbung.