
Aigner Immobilien GmbH
Frau Natalie Off
+49 ···
Nr. anzeigenPreise & Kosten
Provision für Käufer
3,57% inkl. MwSt.
Die Käuferprovision beträgt 3,57% inkl. gesetzlicher Mehrwertsteuer vom wirtschaftlichen Kaufpreis. Unsere Angebote erfolgen freibleibend und unverbindlich. Irrtum und Zwischenverkauf bleiben vorbehalten.
Lage
Die kleine, charmante Gemeinde Raisting liegt im idyllischen Oberbayern, etwa 45 Kilometer südwestlich von München und umgeben von einer einzigartigen Naturlandschaft. Eingebettet in den Pfaffenwinkel, zeichnet sich Raisting durch seine ruhige, ländliche Atmosphäre aus, die durch sanfte Hügel, grüne Wiesen und die Nähe zum...
Das Haus
Kategorie
Einfamilienhaus
Baujahr
1971
Energie & Heizung
Warum sehe ich diese Anzeige? – Du siehst diese Anzeige basierend auf Ihrer Navigation auf unserer Website und den Suchkriterien, die du verwendet hast.
Energieausweistyp
Bedarfsausweis
Gebäudetyp
Wohngebäude
Baujahr laut Energieausweis
1971
Gültigkeit
bis 06.10.2035
Endenergiebedarf
163,50 kWh/(m²·a)
Weitere Energiedaten
Energieträger
Öl
Heizungsart
Zentralheizung
Details
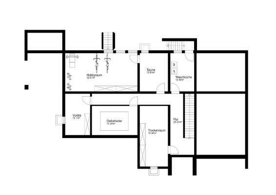
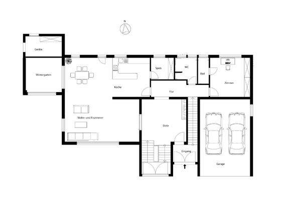
Objektbeschreibung
Dieses großzügige Einfamilienhaus befindet sich in begehrter Lage von Raisting und überzeugt durch einen herrlichen Bergblick. Durch die getrennten Zugänge von Haupthaus und Einliegerwohnung eröffnen sich vielfältige Nutzungsmöglichkeiten.
Das im Jahr 2011 umfassend sanierte Haus präsentiert sich in einem gepflegten...
Ausstattung
- uneinsehbarer Südgarten mit großzügiger Terrasse
- großzügiger Nordgarten
- traumhafter Bergblick
- umfangreiche Sanierungen in 2011
- imposanter Eingangsbereich des Haupthauses mit knapp 5 m Deckenhöhe
- neuwertige Einbauküche mit Markengeräten
- Parkettböden sowie Fliesen
- teilweise...
Preisinformation
4 Garagenstellplätze
Weitere Informationen
Sonstiges
Heizungsart: Zentralheizung
Befeuerung/Energieträger: Öl
Energieausweistyp: Bedarfsausweis
Energiekennwert: 163,5 kWh/(m²*a)
Energieeffizienzklasse: F
Baujahr: 1971
Zu unseren Marktberichten - https://aigner-immobilien.de/marktinformationen/
Mehr Bilder und Infos hier -...
Anbieter der Immobilie
Aigner Immobilien GmbH
Ruffinistraße 26, 80637 München
Online-ID: 2mqct5z
Referenznummer: 43136
Finde Angebote wie dieses
Hier geht es zu unserem Impressum, den Allgemeinen Geschäftsbedingungen, den Hinweisen zum Datenschutz und nutzungsbasierter Online-Werbung.