

Wohnung zur Miete570 €3 Zimmer • 82,1 m² • 1. Geschoss • frei ab sofort
570 €
3 Zimmer • 82,1 m² • 1. Geschoss • frei ab sofort
Geräumige 3-Zimmer-Wohnung mit Aussicht auf das Ithtal
Merkmale
- frei ab sofort
- 1. Geschoss
- Badezimmer: Badewanne, Bad mit Dusche, Bad mit Fenster
- Garten
- Waschraum
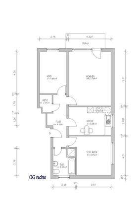
Grundrisse
Grundrisse
1 / 1
Realisiere Dein Projekt
Bausubstanz und Energie
Möchtest du Details zum Energieverbrauch?

- Baujahr2000
- HeizungsartEtagenheizung
- EnergieträgerGas
Mietkosten
Warmmiete
770 €
Kaltmiete
6,94 €/m²
570 €
Nebenkosten
185 €
Kaution
keine Angabe
Weitere Preisinformationen
Nettokaltmiete: 570,00 EUR
Lage

An der Sporthalle 2, Escher, Scharfoldendorf, Eschershausen (37632)
Weitere Informationen
Weitere Services
Lust auf eine Besichtigung?
Eine Frage zur Immobilie?
Über den Anbieter
Wilhelm-Raabe-Str. 3, 37603 Holzminden
Partnerschaft
Tim TillnerDein Kontakt
Weitere Unterlagen
Online-ID: 259YHQR7CJXI
Referenznummer: 301.5301.1004

Bausie GmbH
Bewertung: 4,8 von 5 Sternen
Wie zufrieden bist du mit dieser Seite (nicht mit der Immobilie selbst)?

