

EDE INVEST GmbH & Co. KG
Frau Leonie Laugks
+49 ···
Nr. anzeigenPreise & Kosten
Provision für Käufer
3,57% inkl. 19% MwSt inkl. MwSt.
Lage
Das Objekt befindet sich in einer ruhigen und gewachsenen Wohnlage von Kirchseeon, einer beliebten Gemeinde im östlichen Umland von München. Die Umgebung ist geprägt von Ein- und Zweifamilienhäusern, gepflegten Gärten sowie einer naturnahen und familienfreundlichen Atmosphäre.
Kirchseeon bietet eine ideale Kombination...
Das Haus
Kategorie
Mehrfamilienhaus
Baujahr
2020
Energie & Heizung
Warum sehe ich diese Anzeige? – Du siehst diese Anzeige basierend auf Ihrer Navigation auf unserer Website und den Suchkriterien, die du verwendet hast.
Energieausweistyp
Bedarfsausweis
Gebäudetyp
Wohngebäude
Baujahr laut Energieausweis
2020
Wesentliche Energieträger
LUFTWP
Gültigkeit
bis 01.05.2032
Effizienzklasse
A+
Endenergiebedarf
15,50 kWh/(m²·a)
Details
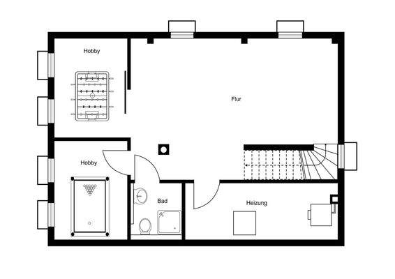
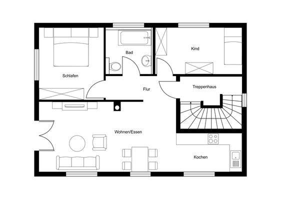
Objektbeschreibung
Großzügiges, modernes Ein- oder Mehrfamilienhaus in schöner Lage von Kirchseeon
Dieses exklusive Ein- bzw. Zweifamilienhaus aus dem Jahr 2020 vereint modernes Wohnen, höchste Energieeffizienz und flexible Nutzungsmöglichkeiten in einer der begehrtesten Wohnlagen im Münchner Osten. Das freistehende Haus erstreckt sich...
Ausstattung
- Vielseitige Gestaltungsmöglichkeiten: als Einfamilienhaus oder für mehrere Parteien
- Gemütlich ausgebautes Dachgeschoss
- Vollwertig nutzbarer Wohnkeller
- Energieeffizienzklasse A+
- moderne, nachhaltige Bauweise
- Luftwärmepumpe mit kontrollierter Lüftungsanlage
-...
Weitere Informationen
Sonstiges
Alle in diesem Exposé verwendeten Angaben beruhen auf Informationen von Dritten (z.B. Eigentümer, Hausverwaltung, etc.) und daher freibleibend und ohne jegliche Gewähr. Zahlenangaben sind immer als ca-Angaben zu verstehen. Irrtum, Änderungen, Zwischenverkauf oder Zwischenvermietung bleiben vorbehalten. Die...
Anbieter der Immobilie
EDE INVEST GmbH & Co. KG
Bavariaring 18, 80336 München

Online-ID: 2mqep5k
Referenznummer: 6280_3
Finde Angebote wie dieses
Hier geht es zu unserem Impressum, den Allgemeinen Geschäftsbedingungen, den Hinweisen zum Datenschutz und nutzungsbasierter Online-Werbung.