Version: 8.25.1Navigation überspringen
1.385.000 €
112 m²  •  1. Geschoss
Immowelt logo

Studio zum Kauf • provisionsfrei
1385000 €
12.366 €/m²
112 m²  •  1. Geschoss

HELLE UND ELEGANTE NEUBAUWOHNUNG

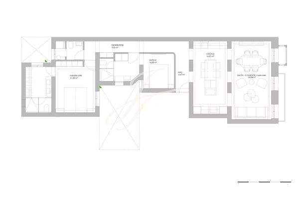
Entdecken Sie diese elegante, 112 m² große, neu renovierte Wohnung in einem Gebäude mit klassischer Fassade mit zwei Balkonen und einem Erker mit Blick auf die Straße und in Richtung Süden. Diese Wohnung ist eine perfekte Verschmelzung von klassischer Eleganz und modernem Komfort, ideal für diejenigen, die einen einzigartigen und gemütlichen Raum suchen. Das geräumige Wohn-/Esszimmer ist in zwei Bereiche unterteilt und eignet sich perfekt für gemütliche Stunden mit der Familie oder Freunden.

Die teilintegrierte Designerküche ist voll ausgestattet und liegt perfekt zwischen dem Gemeinschaftsbereich und dem privaten Bereich. Diese Wohnung verfügt über eine praktische Gästetoilette und einen separaten Waschraum, die den Alltag funktional ergänzen.

Die beiden Schlafzimmer sind geräumig, wobei das Hauptschlafzimmer ein wahrer Zufluchtsort mit eigenem Bad und Ankleidezimmer ist, während das zweite Schlafzimmer ebenfalls über ein eigenes Ankleidezimmer und ein eigenes Bad verfügt und somit Privatsphäre und Komfort garantiert.

Die nach Süden ausgerichteten Balkone sind der perfekte Ort zum Entspannen. Zentralheizung und Klimaanlage sorgen das ganze Jahr über für eine angenehme Atmosphäre. Strategisch günstig im Stadtteil Goya (Bezirk Salamanca) gelegen, ist diese Wohnung von einem vielfältigen Angebot an Restaurants und Geschäften umgeben und damit eine ideale Möglichkeit, das städtische Leben zu genießen, ohne auf Ruhe verzichten zu müssen.

Merkmale

  • Bezug: Ab sofort
  • möbliert
  • 1. Geschoss
  • Barrierefrei, Rollstuhlgerecht
  • Personenaufzug
  • Badewanne
  • voll klimatisiert

Grundrisse

Grundrisse
1 / 1

Realisiere Dein Projekt

Bausubstanz und Energie

Möchtest du Details zum Energieverbrauch?info_energy_calculation-icon
  • Baujahr1940
  • Zustand der ImmobilieAltbau (bis 1945), neuwertig
  • HeizungsartOfen
Immowelt logo

Preisdetails

Kaufpreis
1385000 €
12.366,07 €/m²
Provision für Käufer
provisionsfrei

Lage

address-icon
Madrid (28009)
Der Anbieter hat die genaue Adresse nicht freigegeben

Weitere Informationen

Stichworte Gesamtfläche: 112,00 m², Anzahl der Schlafzimmer: 2, Anzahl der Badezimmer: 2, Anzahl der separaten WCs: 1, 1 Etagen

Weitere Services

Lust auf eine Besichtigung?
Eine Frage zur Immobilie?
Nachricht hinzufügen
Mit der Nutzung der oben angegebenen Telefonnummer oder durch Klicken auf „Kontaktieren“ akzeptierst Du die Allgemeinen Nutzungsbedingungen, denen Du jederzeit widersprechen kannst. Weitere Informationen zum Datenschutz

Über den Anbieter

Place des Moulins, 98000 MONACO
partner badge
Partnerschaft
John Taylor Madrid Salamanca John Taylor Madrid SalamancaDein Kontakt
Online-ID: 25136NDFR9VY
Referenznummer: V2732MA
John Taylor Corporate
Nachricht hinzufügen
Mit der Nutzung der oben angegebenen Telefonnummer oder durch Klicken auf „Kontaktieren“ akzeptierst Du die Allgemeinen Nutzungsbedingungen, denen Du jederzeit widersprechen kannst. Weitere Informationen zum Datenschutz
Wie zufrieden bist du mit dieser Seite (nicht mit der Immobilie selbst)?