
BEG-Immobilien GmbH
Frau Irena Kapetanovic
004 ···
Nr. anzeigenPreise & Kosten
Provision für Käufer
3,57% inkl. MwSt. vom Kaufpreis. Die Provision ist verdient und mit notarieller Beurkundung fällig.
Lage
Die Wohnung liegt im Herzen der Esslinger Altstadt, einem der attraktivsten und historisch bedeutsamsten Stadtbereiche Esslingens. Die Umgebung ist geprägt von liebevoll restaurierten Fachwerkhäusern, kleinen Plätzen und charmanten Fußgängerzonen, die eine besondere Wohnatmosphäre schaffen. Das Wohnumfeld bietet eine...
Die Wohnung
Bezug
Sofort
Wohnanlage
Energie & Heizung
Warum sehe ich diese Anzeige? – Du siehst diese Anzeige basierend auf Ihrer Navigation auf unserer Website und den Suchkriterien, die du verwendet hast.
Energieausweis: für diesen Gebäudetyp nicht notwendig
Weitere Energiedaten
Heizungsart
Etagenheizung
Details
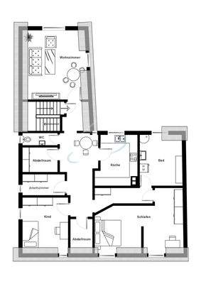
Objektbeschreibung
Diese großzügige 4-Zimmer-Dachgeschosswohnung befindet sich in einem denkmalgeschützten Mehrfamilienhaus mit nur drei Wohneinheiten im Herzen von Esslingen am Neckar. Das Gebäude besticht durch seine historische Fachwerkkonstruktion, die seinen besonderen Charme unterstreichen. Die Wohnung ist renovierungsbedürftig und bietet...
Ausstattung
- Denkmalgeschütztes Fachwerkhaus mit drei Wohneinheiten:
"Traufständiges, zweigeschossiges Fachwerkgebäude des Spätmittelalters. Über der massiven Westwand ein zweifach vorkragender Giebel, an dem sich unter dem Putz lange Knaggen abzeichnen. In der südwestlichen Ecke des 1. OG hat sich eine Bohlenstube mit...
Weitere Informationen
Stichworte
Anzahl der Schlafzimmer: 2, Anzahl der Badezimmer: 1, Anzahl der separaten WCs: 1, 2 Etagen
Sonstiges/Wohnen: Dachboden
Anbieter der Immobilie
BEG-Immobilien GmbH
Blockgasse 3, 74523 Schwäbisch Hall
Online-ID: 2mqfe5m
Referenznummer: 1930
Finde Angebote wie dieses
Hier geht es zu unserem Impressum, den Allgemeinen Geschäftsbedingungen, den Hinweisen zum Datenschutz und nutzungsbasierter Online-Werbung.