
Capital-Real GmbH & Co.KG
Frau Zoe Gerdung
004 ···
Nr. anzeigenPreise & Kosten
Kaution
3.060,00
Warum sehe ich diese Anzeige? – Du siehst diese Anzeige basierend auf Ihrer Navigation auf unserer Website und den Suchkriterien, die du verwendet hast.
Lage
Oldenburg ist eine dynamische Stadt im Nordwesten Niedersachsens, die durch ihre hohe Lebensqualität, eine charmante Innenstadt und grüne Umgebung überzeugt.
Der Ortsteil Fliegerhorst liegt im Norden der Stadt und befindet sich im Wandel: Aus einem ehemaligen Militärgelände entsteht hier ein modernes...
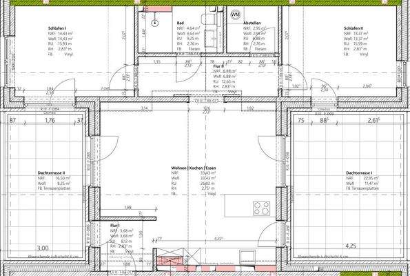
Die Wohnung
Wohnungslage
2. Geschoss (Dachgeschoss)
Bezug
ab sofort
Wohnanlage
Energie & Heizung
Warum sehe ich diese Anzeige? – Du siehst diese Anzeige basierend auf Ihrer Navigation auf unserer Website und den Suchkriterien, die du verwendet hast.
Weitere Energiedaten
Heizungsart
Fußbodenheizung, Luft-/Wasser-Wärmepumpe
Details
Objektbeschreibung
Diese moderne Wohnung mit ca. 99?m² Wohnfläche überzeugt durch ihre durchdachte Raumaufteilung und ein stilvolles Ambiente.
Highlight der Immobilie sind die zwei großzügigen Dachterrassen, die sich ideal für Ruhe und Entspannung anbieten.
Der offen gestaltete Wohn- und Essbereich schafft eine einladende...
Ausstattung
+ 2 Dachterrassen
+ HWR
+ Fußbodenheizung
+ Luft-/ Wasser-/ Wärmepumpe
+ Tiefgaragenstellplatz
+ Anmietung eines Kellerabteils möglich
Preisinformation
1 Tiefgaragenstellplatz
Weitere Informationen
Sonstiges
Unsere Immobilienangebote verstehen sich freibleibend und unverbindlich. Zwischenvermittlung ausdrücklich vorbehalten. Die Angaben zum Objekt basieren auf erteilten Informationen Dritter. Für die Richtigkeit und Vollständigkeit kann deshalb keine Haftung übernommen werden.
Wir können Anfragen nur mit...
Anbieter der Immobilie
Capital-Real GmbH & Co.KG
Donnerschweer Str. 325 , 26123 Oldenburg
Online-ID: 2mqfw52
Referenznummer: CR-469_16
Finde Angebote wie dieses
Hier geht es zu unserem Impressum, den Allgemeinen Geschäftsbedingungen, den Hinweisen zum Datenschutz und nutzungsbasierter Online-Werbung.