
Lass Immobilien GmbH
Herrn Oscar Lass
+49 ···
Nr. anzeigenPreise & Kosten
Warum sehe ich diese Anzeige? – Du siehst diese Anzeige basierend auf Ihrer Navigation auf unserer Website und den Suchkriterien, die du verwendet hast.
Lage
Die Dachgeschosswohnung befindet sich in einem beliebten Stadtteil von Münster in direkter Ortslage gegenüber dem Schloß (Drostenhof) in Wolbeck. Hier in dieser ruhigen und dennoch zentralen Gegend finden sich viele Grünflächen und Parks, die zu Spaziergängen und Erholung einladen. Die Nachbarschaft ist geprägt von charmanten...
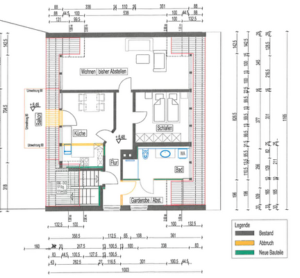
Die Wohnung
Wohnungslage
Dachgeschoss
Bezug
01.03.2026
Wohnanlage
Energie & Heizung
Warum sehe ich diese Anzeige? – Du siehst diese Anzeige basierend auf Ihrer Navigation auf unserer Website und den Suchkriterien, die du verwendet hast.
Energieausweistyp
Bedarfsausweis
Gebäudetyp
Wohngebäude
Baujahr laut Energieausweis
1934
Wesentliche Energieträger
Wärmepumpe
Gültigkeit
29.06.2024 bis 29.06.2024
Effizienzklasse
A
Endenergiebedarf
36,10 kWh/(m²·a)
Weitere Energiedaten
Heizungsart
Luft-/Wasser-Wärmepumpe
Details
Objektbeschreibung
Die charmante Dachgeschosswohnung in einem Altbau aus dem Jahr 1934 präsentiert sich zur Neuvermietung nach einer umfassenden Sanierung im Jahr 2024. Mit einer Wohnfläche von 78 Quadratmetern bietet sie ausreichend Platz für eine Einzelperson oder ein Paar. Ein Balkon lädt zum Entspannen und Genießen der Sonne ein. Zusätzlich...
Ausstattung
# 2-Zimmer-Whg.
# 78 qm Wfl.
# Küche mit Balkonzugang
# Bad mit Fenster, Dusche, WC und Waschtisch
# Balkon
# Kellerraum
# Fahrradgarage
# Fußbodenheizung
# hochwertiger Vinyl-Boden
# Bezug der Whg. ab 01.03.2026 , früher möglich
Weitere Informationen
Sonstiges
Hinweis:
Wir bitten um Verständnis dafür, dass wir keine Kontaktanfragen ohne vollständige Anschrift und Telefonnummer der Miet-Interessenten bearbeiten können.
Stichworte
Anzahl der Schlafzimmer: 1, Anzahl der Badezimmer: 1, Anzahl Balkone: 1, 2 Etagen, Lage im Ort, modernisiert: 2024
Anbieter der Immobilie
Lass Immobilien GmbH
Wolbecker Windmühle 67, 48167 Münster
Online-ID: 2mqhr5j
Referenznummer: 65065#69RbU
Finde Angebote wie dieses
Hier geht es zu unserem Impressum, den Allgemeinen Geschäftsbedingungen, den Hinweisen zum Datenschutz und nutzungsbasierter Online-Werbung.