
Mein Guter Makler GmbH
Herr Dennis Hartwig
042 ···
Nr. anzeigenPreise & Kosten
Kaution
2255
Warum sehe ich diese Anzeige? – Du siehst diese Anzeige basierend auf Ihrer Navigation auf unserer Website und den Suchkriterien, die du verwendet hast.
Lage
Die Wohnung befindet sich im beliebten Bremer Stadtteil Horn-Lehe, einer der begehrtesten Wohnlagen im Bremer Nordosten. Das Umfeld besticht durch eine gelungene Mischung aus urbanem Komfort, grüner Umgebung und einem hohen Maß an Lebensqualität.
Horn-Lehe ist bekannt für seine gepflegten Wohnstraßen, die überwiegend...
Die Wohnung
Wohnungslage
4. Geschoss
Bezug
01.02.2026
Wohnanlage
Energie & Heizung
Warum sehe ich diese Anzeige? – Du siehst diese Anzeige basierend auf Ihrer Navigation auf unserer Website und den Suchkriterien, die du verwendet hast.
Energieausweistyp
Bedarfsausweis
Gebäudetyp
Wohngebäude
Wesentliche Energieträger
Fernwärme
Gültigkeit
10.11.2023 bis 09.11.2033
Effizienzklasse
E
Endenergiebedarf
136,00 kWh/(m²·a)
Weitere Energiedaten
Energieträger
Fernwärme
Details
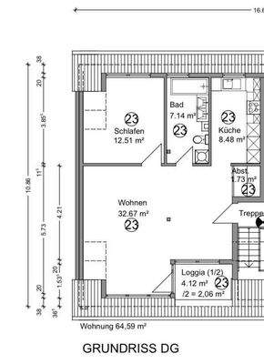
Objektbeschreibung
Die angebotene Wohnung befindet sich im 2023 neu gebauten Dachgeschosses des ruhig gelegenen Mehrparteienhauses im Bremer Stadtteil Horn-Lehe. Mit einer Wohnfläche von ca. 65 qm ist die Wohnung sehr hell und offen gestaltet.
Ein geräumiges und lichtdurchflutetes Wohnzimmer bietet Zugang zu der Wohnung. Hier findet...
Ausstattung
- Neubau-Dachgeschosswohnung (Baujahr 2023) in ruhiger Lage von Bremen-Horn-Lehe
- 2-Zimmer-Wohnung
- Ca. 65 m² Wohnfläche
- Freigelegte Holzbalken sorgen für besonderen Charme
- Südwestlich ausgerichtete Loggia
- Moderne Einbauküche inkl. Elektrogeräte und Geschirrspüler
- Tageslichtbad mit Regendusche und...
Weitere Informationen
Sonstiges
Wir freuen uns auf Ihre Anfrage und bieten Ihnen nach Rücksprache einen persönlichen Besichtigungstermin an.
Mit freundlichen Grüßen,
Mein Guter Makler
Stichworte
Stellplatz vorhanden, Anzahl der Schlafzimmer: 1, Anzahl der Badezimmer: 1, Anzahl Balkone: 1, Bundesland: Bremen, modernisiert...
Anbieter der Immobilie
Online-ID: 2mqj95p
Referenznummer: 1344
Finde Angebote wie dieses
Hier geht es zu unserem Impressum, den Allgemeinen Geschäftsbedingungen, den Hinweisen zum Datenschutz und nutzungsbasierter Online-Werbung.