
CAPERA Immobilien Service GmbH
Christian Dücker
Kontaktiere den Anbieter schriftlich, es ist keine Telefonnummer hinterlegt.
Preise & Kosten
nicht in Warmmiete enthalten
Kaution
3.930,00
Warum sehe ich diese Anzeige? – Du siehst diese Anzeige basierend auf Ihrer Navigation auf unserer Website und den Suchkriterien, die du verwendet hast.
Lage
Neu Wulmstorf ist eine aufstrebende Stadt mit einer hervorragenden Anbindung an Hamburg und die umliegenden Städte. Die Nachbarschaft ist ruhig und bietet zahlreiche Grünflächen, ideal für Spaziergänge und Freizeitaktivitäten. Einkaufsmöglichkeiten, Schulen und öffentliche Verkehrsmittel sind in unmittelbarer Nähe, was die...
Die Wohnung
Wohnungslage
1. Geschoss
Bezug
sofort
Wohnanlage
Details
Objektbeschreibung
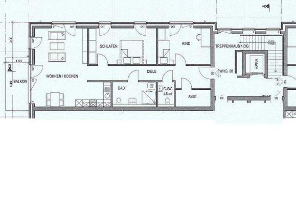
Diese charmante 3-Zimmer-Wohnung befindet sich in einem modernen Gebäude in der Thomas-Mann-Str. 21629 Neu Wulmstorf. Mit einer großzügigen Wohnfläche von ca.98,99 m² bietet die Wohnung einen durchdachten Grundriss, der auf einem der oberen Stockwerke gelegen ist. Die Räume sind lichtdurchflutet, minimalistisch gestaltet und...
Ausstattung
Die Wohnung verfügt über eine moderne, L-förmige Küche mit weißen Schränken und schwarzen Arbeitsflächen, die für ausreichend Stauraum sorgt. Das Badezimmer ist hell und minimalistisch gehalten, ausgestattet mit einer schwebenden Toilette und einem rechteckigen Waschbecken. Für zusätzlichen Komfort sorgt die Fußbodenheizung...
Preisinformation
1 Tiefgaragenstellplatz, Miete: 65,00 EUR
Weitere Informationen
Sonstiges
Die Wohnung ist ab dem 1. September 2025 verfügbar.
Bei den Fotos handelt es sich um Vergleichsfotos zu der EG Wohnungen unter dieser.
Energiepass
Energieausweis wird bei Besichtigung vorgelegt.
Stichworte
Tiefgarage vorhanden, Anzahl der Schlafzimmer: 2, Anzahl der Badezimmer: 2...
Anbieter der Immobilie
CAPERA Immobilien Service GmbH
Dornhofstr. 100, 63263 Neu-Isenburg
Christian Dücker
Dein Ansprechpartner
Kontaktiere den Anbieter schriftlich, es ist keine Telefonnummer hinterlegt.
Online-ID: 2mqk55k
Referenznummer: 161851
Finde Angebote wie dieses
Hier geht es zu unserem Impressum, den Allgemeinen Geschäftsbedingungen, den Hinweisen zum Datenschutz und nutzungsbasierter Online-Werbung.