
ÖRAG Immobilien Vermittlung GmbH
Frau Lara Steinbacher
004 ···
Nr. anzeigenPreise & Kosten
inkl. Betriebskosten
Kaution
2.475,00
Warum sehe ich diese Anzeige? – Du siehst diese Anzeige basierend auf Ihrer Navigation auf unserer Website und den Suchkriterien, die du verwendet hast.
Lage
Die Lage könnte nicht besser sein.
In unmittelbarer U-Bahn Nähe (U3), mit Straßenbahn (71) und Buslinie (N) vor der Tür, sowie der Autobahnauffahrt Gürtel/Landstraße sind sie bestens an alle Verkehrswege angebunden.
Die Simmeringer Hauptstraße bietet fußläufig erreichbar eine Vielzahl an Einkaufsmöglichkeiten...
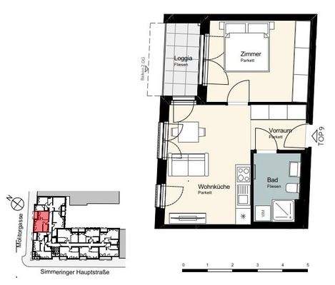
Die Wohnung
Wohnungslage
1. Geschoss
Bezug
Q3 2026
Wohnanlage
Energie & Heizung
Warum sehe ich diese Anzeige? – Du siehst diese Anzeige basierend auf Ihrer Navigation auf unserer Website und den Suchkriterien, die du verwendet hast.
Heizwärmebedarf (HWB)
31,30 kWh/(m²·a)
Gesamtenergieeffizienz (fGEE)
0,67
Weitere Energiedaten
Heizungsart
Fußbodenheizung
Details
Objektbeschreibung
Kurzbeschreibung
Herz & Heim - da simma z´haus
Zur Vermarktung gelangen 32 Ein- bis Drei-Zimmer-Wohnungen in der Größe zwischen 31 und 86 m², sowie 17 Stellplätze in bester Simmeringer Lage. Geplanter Einzugstermin ist der Sommer 2026.
Objekt
Herz & Heim - da simma z´haus
Zur Vermarktung...
Ausstattung
Die einladende Fassade ist begrünt, eine Klinkerfassade steht im spannenden Wechsel mit Beton-, Eternit- und Glaselementen. 3-fach-verglaste Holz-Alufenster mit Außenbeschattung sorgen für Energieeffizienz. Alle Dachgeschoßwohnungen verfügen weiters über Klimaanlagen.
Die einzelnen Wohnungen sind mit hochwertigen Steirer...
Preisinformation
Nettokaltmiete: 656,08 EUR
Weitere Informationen
Sonstiges
Wir sind eine Tochtergesellschaft der ÖRAG-Österreichische Realitäten AG, Wien, genannt ÖRAG, und es besteht daher unter Umständen ein sonstiges wirtschaftliches Naheverhältnis im Sinne des Maklergesetzes zur ÖRAG und ihren anderen Tochtergesellschaften in Österreich. Das Naheverhältnis zur ÖRAG ergibt sich zB...
Dokumente
Anbieter der Immobilie
Online-ID: 2mqlh5y
Referenznummer: 109242565_33
Finde Angebote wie dieses
Hier geht es zu unserem Impressum, den Allgemeinen Geschäftsbedingungen, den Hinweisen zum Datenschutz und nutzungsbasierter Online-Werbung.